
| Appraised Value | Assessed Value | |
| Building Value | $ 1,919,500 | $ 1,919,500 |
| Extra Features | $ 0 | $ 0 |
| Outbuildings | $ 142,900 | $ 142,900 |
| Land Value | $ 1,308,300 | $ 1,308,300 |
| Totals | $ 3,370,700 | $ 3,370,700 |
| 2026
Community Preservation Act Tax $ 600.66 Hyannis FD Tax (Commercial) $ 12,876.07 Town Tax (Commercial) $ 20,021.96 Total: $ 33,498.69 |
2025
Community Preservation Act Tax $ 592.66 Hyannis FD Tax (Commercial) $ 12,079.98 Town Tax (Commercial) $ 19,755.46 Total: $ 32,428.10 |
| Owner: | Sale Date | Book/Page: | Sale Price: |
| 600 YARMOUTH ROAD LLC | 2017-06-02 | 30534/0031 | $1500000 |
| LESLIE, EDWARD E TR | 1998-06-01 | 11469/0348 | $1 |
| LESLIE, EDWARD E | 1995-04-15 | 9616/0302 | $600000 |
| WILBUR, WINTHROP V& NANCY K | 1978-10-17 | 2802/0301 | $0 |
| As Built Cards:Click card # to view: | Card #1 | | Card #2 | |

| B2N | Barn-any 2nd story area | FPC | Open Porch Concrete Floor | REF | Reference Only |
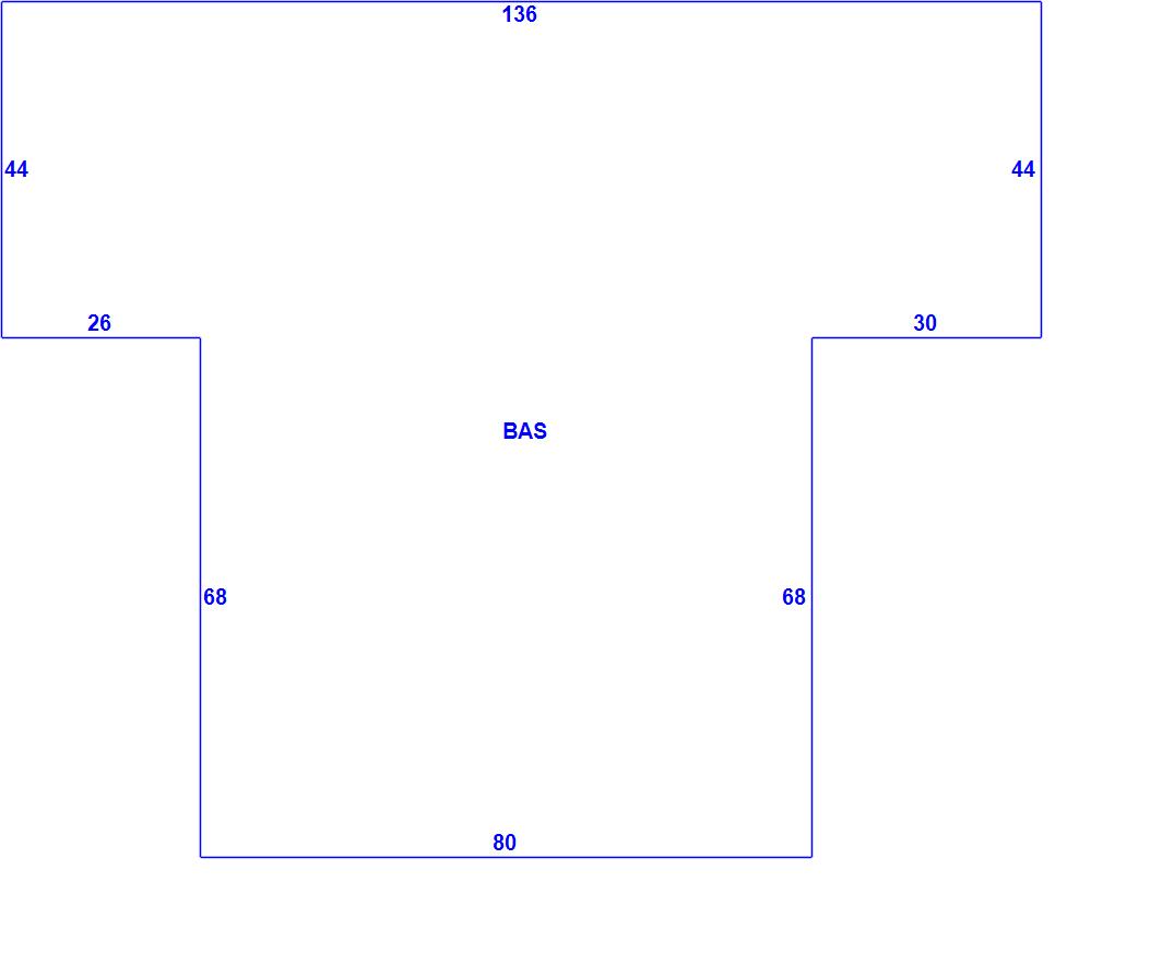
| BAS | First Floor, Living Area | FTS | Third Story Living Area (Finished) | SOL | Solarium |
| BMT | Basement Area (Unfinished) | FUS | Second Story Living Area (Finished) | SPE | Pool Enclosure |
| BRN | Barn | GAR | Garage | TQS | Three Quarters Story (Finished) |
| CAN | Canopy | GAZ | Gazebo | UAT | Attic Area (Unfinished) |
| CLP | Loading Platform | GRN | Greenhouse | UHS | Half Story (Unfinished) |
| FAT | Attic Area (Finished) | GXT | Garage Extension Front | UST | Utility Area (Unfinished) |
| FCP | Carport | KEN | Kennel | UTQ | Three Quarters Story (Unfinished) |
| FEP | Enclosed Porch | MZ1 | Mezzanine, Unfinished | UUA | Unfinished Utility Attic |
| FHS | Half Story (Finished) | PRG | Pergola | UUS | Full Upper 2nd Story (Unfinished) |
| FOP | Open or Screened in Porch | PRT | Portico | WDK | Wood Deck |
| PTO | Patio | ||||
Building |
Details |
Land |
|||
| Building value | $ 1,919,500 | Bedrooms | USE CODE | 3350 | |
| Replacement Cost | $1,999,447 | Bathrooms | Lot Size (Acres) | 2.11 | |
| Model | Commercial | Total Rooms | Appraised Value | $ 1,308,300 | |
| Style | Car Wash | Heat Fuel | Gas | Assessed Value | $ 1,308,300 |
| Grade | Average | Heat Type | Hot Air | ||
| Year Built | 2020 | AC Type | Central | ||
| Effective depreciation | 4 | Interior Floors | Concr Finished | ||
| Stories | 1 | Interior Walls | Plastered | ||
| Living Area sq/ft | 11,424 | Exterior Walls | Pre-finsh Metl | ||
| Gross Area sq/ft | 11,424 | Roof Structure | Gable/Hip | ||
| Roof Cover | Asph/F Gls/Cmp | ||||
| Code | Description | Units/SQ ft | Appraised Value | Assessed Value |
| PAV1 | PAVING-ASPHALT | 64700 | $ 62,100 | $ 62,100 |
| SOL3 | Solar PV Panels 72 - 96 | 110 | $ 0 | $ 0 |
| TRSW | Trash Encl-6' w/gates | 1 | $ 3,300 | $ 3,300 |
| PAT2 | Patio-Good | 1600 | $ 13,100 | $ 13,100 |
| PRG1 | Pergola-Avg | 760 | $ 13,100 | $ 13,100 |
| LTHL | Halide Light FIxture | 18 | $ 25,800 | $ 25,800 |
| PKBR | Parking Bumper-6' | 7 | $ 400 | $ 400 |
| PAT1 | Patio- Average | 896 | $ 4,700 | $ 4,700 |
| PAV1 | PAVING-ASPHALT | 10000 | $ 20,400 | $ 20,400 |