
| Appraised Value | Assessed Value | |
| Building Value | $ 200,100 | $ 200,100 |
| Extra Features | $ 5,400 | $ 5,400 |
| Outbuildings | $ 1,000 | $ 1,000 |
| Land Value | $ 133,400 | $ 133,400 |
| Totals | $ 339,900 | $ 339,900 |
| 2026
Community Preservation Act Tax $ 69.34 Hyannis FD Tax (Residential) $ 815.76 Town Tax (Residential) $ 2,311.32 Total: $ 3,196.42 |
2025
Community Preservation Act Tax $ 46.01 Hyannis FD Tax (Residential) $ 514.93 Town Tax (Residential) $ 1,533.74 Total: $ 2,094.68 |
| Owner: | Sale Date | Book/Page: | Sale Price: |
| JGB PROPERTY GROUP LLC | 2024-10-24 | 36634/179 | $400000 |
| MERLESENA, JOHN P | 2024-09-24 | 36582/241 | $0 |
| MERLESENA, JOHN P | 2009-03-17 | 23535/0112 | $1 |
| MERLESENA REALTY CORP | 2008-05-16 | 22914/0062 | $145000 |
| JOHNSON DAMON, JOANNE | 2005-10-03 | 20327/0261 | $240000 |
| CROTEAU, MICHAEL & JAYNE | 2003-03-17 | 16584/0100 | $122500 |
| CLARK, ROBERT S | 2003-03-17 | 16584/0096 | $0 |
| CLARK, ROBERT L | 1954-06-15 | 0877/0225 | $0 |
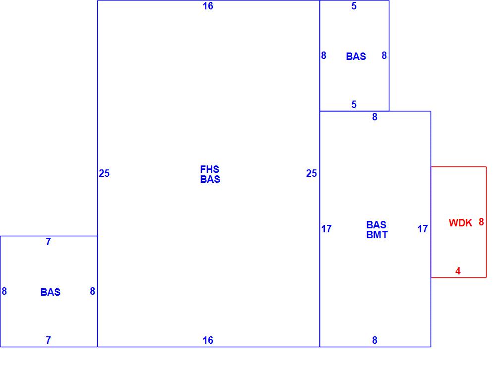
| As Built Cards:Click card # to view: | Card #1 | |

| B2N | Barn-any 2nd story area | FPC | Open Porch Concrete Floor | REF | Reference Only |
| BAS | First Floor, Living Area | FTS | Third Story Living Area (Finished) | SOL | Solarium |
| BMT | Basement Area (Unfinished) | FUS | Second Story Living Area (Finished) | SPE | Pool Enclosure |
| BRN | Barn | GAR | Garage | TQS | Three Quarters Story (Finished) |
| CAN | Canopy | GAZ | Gazebo | UAT | Attic Area (Unfinished) |
| CLP | Loading Platform | GRN | Greenhouse | UHS | Half Story (Unfinished) |
| FAT | Attic Area (Finished) | GXT | Garage Extension Front | UST | Utility Area (Unfinished) |
| FCP | Carport | KEN | Kennel | UTQ | Three Quarters Story (Unfinished) |
| FEP | Enclosed Porch | MZ1 | Mezzanine, Unfinished | UUA | Unfinished Utility Attic |
| FHS | Half Story (Finished) | PRG | Pergola | UUS | Full Upper 2nd Story (Unfinished) |
| FOP | Open or Screened in Porch | PRT | Portico | WDK | Wood Deck |
| PTO | Patio | ||||
Building |
Details |
Land |
|||
| Building value | $ 200,100 | Bedrooms | 2 Bedrooms | USE CODE | 1040 |
| Replacement Cost | $238,217 | Bathrooms | 2 Full-0 Half | Lot Size (Acres) | 0.11 |
| Model | Residential | Total Rooms | 4 Rooms | Appraised Value | $ 133,400 |
| Style | Family Conver. | Heat Fuel | Gas | Assessed Value | $ 133,400 |
| Grade | Average Plus | Heat Type | Hot Water | ||
| Year Built | 1926 | AC Type | Central | ||
| Effective depreciation | 16 | Interior Floors | Vinyl/Asphalt | ||
| Stories | 1 1/2 Stories | Interior Walls | Plastered | ||
| Living Area sq/ft | 832 | Exterior Walls | Cement Siding | ||
| Gross Area sq/ft | 1,200 | Roof Structure | Gable/Hip | ||
| Roof Cover | Asph/F Gls/Cmp | ||||
| Code | Description | Units/SQ ft | Appraised Value | Assessed Value |
| BMT | Basement-Unfinished | 136 | $ 5,400 | $ 5,400 |
| WDCK | Wood Decking w/railings | 32 | $ 1,000 | $ 1,000 |