
| Appraised Value | Assessed Value | |
| Building Value | $ 781,200 | $ 781,200 |
| Extra Features | $ 0 | $ 0 |
| Outbuildings | $ 4,300 | $ 4,300 |
| Land Value | $ 213,600 | $ 213,600 |
| Totals | $ 999,100 | $ 999,100 |
| 2026
Community Preservation Act Tax $ 178.04 Hyannis FD Tax (Commercial) $ 3,816.56 Town Tax (Commercial) $ 5,934.65 Total: $ 9,929.25 |
2025
Community Preservation Act Tax $ 180.27 Hyannis FD Tax (Commercial) $ 3,674.42 Hyannis FD Tax (Residential) $ 0 Town Tax (Commercial) $ 6,009.11 Town Tax (Residential) $ 0 Total: $ 9,863.80 |
| Owner: | Sale Date | Book/Page: | Sale Price: |
| HORGAN, FRANCIS L JR & LINDA H TRS | 2020-01-03 | 32596/0281 | $1 |
| HORGAN, FRANCIS L TR | 2001-07-03 | 14009/0111 | $337500 |
| JAMES, DANIEL E ETAL | 3160/0088 | $0 |
AsBuilt Card N/A

| B2N | Barn-any 2nd story area | FPC | Open Porch Concrete Floor | REF | Reference Only |
| BAS | First Floor, Living Area | FTS | Third Story Living Area (Finished) | SOL | Solarium |
| BMT | Basement Area (Unfinished) | FUS | Second Story Living Area (Finished) | SPE | Pool Enclosure |
| BRN | Barn | GAR | Garage | TQS | Three Quarters Story (Finished) |
| CAN | Canopy | GAZ | Gazebo | UAT | Attic Area (Unfinished) |
| CLP | Loading Platform | GRN | Greenhouse | UHS | Half Story (Unfinished) |
| FAT | Attic Area (Finished) | GXT | Garage Extension Front | UST | Utility Area (Unfinished) |
| FCP | Carport | KEN | Kennel | UTQ | Three Quarters Story (Unfinished) |
| FEP | Enclosed Porch | MZ1 | Mezzanine, Unfinished | UUA | Unfinished Utility Attic |
| FHS | Half Story (Finished) | PRG | Pergola | UUS | Full Upper 2nd Story (Unfinished) |
| FOP | Open or Screened in Porch | PRT | Portico | WDK | Wood Deck |
| PTO | Patio | ||||
Building |
Details |
Land |
|||
| Building value | $ 781,200 | Bedrooms | 00 | USE CODE | 3400 |
| Replacement Cost | $1,055,709 | Bathrooms | 0 Full-0 Half | Lot Size (Acres) | 0.33 |
| Model | Commercial | Total Rooms | Appraised Value | $ 213,600 | |
| Style | Office Bldg | Heat Fuel | Gas | Assessed Value | $ 213,600 |
| Grade | Custom | Heat Type | Hot Water | ||
| Year Built | 1910 | AC Type | None | ||
| Effective depreciation | 26 | Interior Floors | Carpet | ||
| Stories | 2 | Interior Walls | Drywall | ||
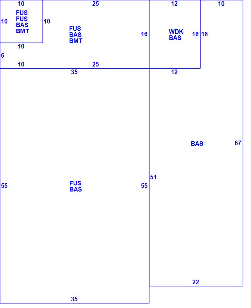
| Living Area sq/ft | 6,544 | Exterior Walls | Brick/Masonry | ||
| Gross Area sq/ft | 7,296 | Roof Structure | Flat | ||
| Roof Cover | Tar & Gravel | ||||
| Code | Description | Units/SQ ft | Appraised Value | Assessed Value |
| PAV1 | PAVING-ASPHALT | 4500 | $ 4,300 | $ 4,300 |