
| Appraised Value | Assessed Value | |
| Building Value | $ 274,700 | $ 274,700 |
| Extra Features | $ 20,200 | $ 20,200 |
| Outbuildings | $ 0 | $ 0 |
| Land Value | $ 133,400 | $ 133,400 |
| Totals | $ 428,300 | $ 428,300 |
| 2026
Hyannis FD Tax (Commercial) $ 0 Town Tax (Commercial) $ 0 Total: $ 0 |
2025
Hyannis FD Tax (Commercial) $ 0 Hyannis FD Tax (Residential) $ 0 Town Tax (Commercial) $ 0 Town Tax (Residential) $ 0 Total: $ 0 |
| Owner: | Sale Date | Book/Page: | Sale Price: |
| BARNSTABLE HOUSING AUTHORITY | 1972-03-22 | 1639/0098 | $0 |
AsBuilt Card N/A

| B2N | Barn-any 2nd story area | FPC | Open Porch Concrete Floor | REF | Reference Only |
| BAS | First Floor, Living Area | FTS | Third Story Living Area (Finished) | SOL | Solarium |
| BMT | Basement Area (Unfinished) | FUS | Second Story Living Area (Finished) | SPE | Pool Enclosure |
| BRN | Barn | GAR | Garage | TQS | Three Quarters Story (Finished) |
| CAN | Canopy | GAZ | Gazebo | UAT | Attic Area (Unfinished) |
| CLP | Loading Platform | GRN | Greenhouse | UHS | Half Story (Unfinished) |
| FAT | Attic Area (Finished) | GXT | Garage Extension Front | UST | Utility Area (Unfinished) |
| FCP | Carport | KEN | Kennel | UTQ | Three Quarters Story (Unfinished) |
| FEP | Enclosed Porch | MZ1 | Mezzanine, Unfinished | UUA | Unfinished Utility Attic |
| FHS | Half Story (Finished) | PRG | Pergola | UUS | Full Upper 2nd Story (Unfinished) |
| FOP | Open or Screened in Porch | PRT | Portico | WDK | Wood Deck |
| PTO | Patio | ||||
Building |
Details |
Land |
|||
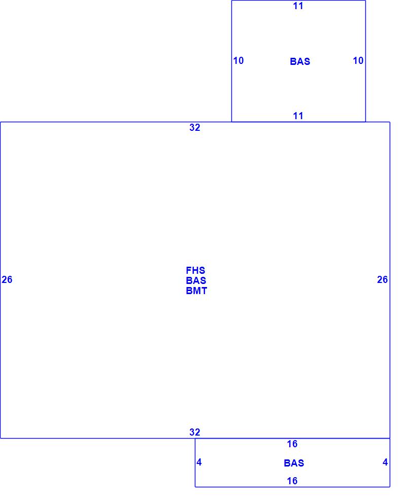
| Building value | $ 274,700 | Bedrooms | 3 Bedrooms | USE CODE | 970R |
| Replacement Cost | $398,046 | Bathrooms | 1 Full-0 Half | Lot Size (Acres) | 0.11 |
| Model | Residential | Total Rooms | 4 Rooms | Appraised Value | $ 133,400 |
| Style | Conventional | Heat Fuel | Oil | Assessed Value | $ 133,400 |
| Grade | Average | Heat Type | Hot Water | ||
| Year Built | 1950 | AC Type | None | ||
| Effective depreciation | 31 | Interior Floors | Hardwood | ||
| Stories | 1 1/2 Stories | Interior Walls | Plastered | ||
| Living Area sq/ft | 1,422 | Exterior Walls | Vinyl Siding | ||
| Gross Area sq/ft | 2,670 | Roof Structure | Gable/Hip | ||
| Roof Cover | Asph/F Gls/Cmp | ||||
| Code | Description | Units/SQ ft | Appraised Value | Assessed Value |
| BMT | Basement-Unfinished | 832 | $ 16,100 | $ 16,100 |
| FPL2 | Fireplace 1.5 stories | 1 | $ 4,100 | $ 4,100 |