
| Appraised Value | Assessed Value | |
| Building Value | $ 279,300 | $ 279,300 |
| Extra Features | $ 36,800 | $ 36,800 |
| Outbuildings | $ 1,900 | $ 1,900 |
| Land Value | $ 151,900 | $ 151,900 |
| Totals | $ 469,900 | $ 469,900 |
| 2026
Community Preservation Act Tax $ 39.80 Hyannis FD Tax (Commercial) $ 0 Hyannis FD Tax (Residential) $ 1,127.76 Town Tax (Commercial) $ 0 Town Tax (Residential) $ 1,326.77 Total: $ 2,494.33 |
2025
Community Preservation Act Tax $ 41.93 Hyannis FD Tax (Commercial) $ 0 Hyannis FD Tax (Residential) $ 1,014.02 Town Tax (Commercial) $ 0 Town Tax (Residential) $ 1,397.77 Total: $ 2,453.72 |
| Residential Exemption Received= $274,787 |
Residential Exemption Received= $233,792 |
| Owner: | Sale Date | Book/Page: | Sale Price: |
| DEOLIVEIRA, MARIA INEZ SANTOS | 2000-09-22 | 13254/0238 | $159900 |
| BIG YELLOW LP | 1998-06-24 | 11524/0022 | $1 |
| LYON, JEFFREY A TR | 1997-04-17 | 10702/0017 | $1 |
| LYON, JEFFREY A & JENNIFER | 1995-05-15 | 9675/0018 | $89500 |
| CENTRAL CO-OP BANK | 1994-11-15 | 9440/0202 | $99900 |
| MOORE, KENNETH B & SOPHIA | 1993-11-15 | 8913/0242 | $100 |
| MOORE, KENNETH B & SOPHIA & | 1989-05-15 | 6718/0181 | $196000 |
| SHAW, HOWARD | 1987-01-13 | 5516/0170 | $0 |
| TRIANTAFYLLOS, MARY | 1986-09-15 | 5310/0282 | $131000 |
| SHAW, HOWARD M | 1986-07-15 | 5173/0115 | $1 |
| SCHWARTZ, MICHAEL | 1979-10-29 | 3005/0068 | $0 |
AsBuilt Card N/A

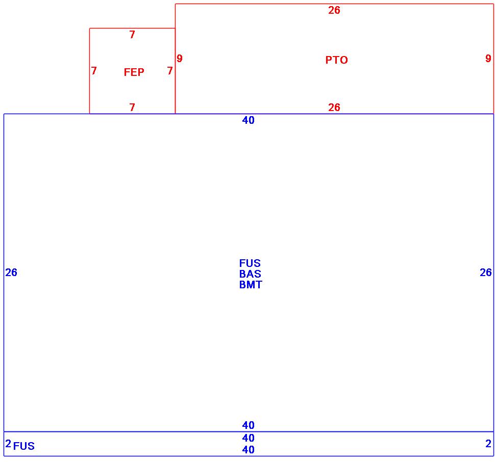
| B2N | Barn-any 2nd story area | FPC | Open Porch Concrete Floor | REF | Reference Only |
| BAS | First Floor, Living Area | FTS | Third Story Living Area (Finished) | SOL | Solarium |
| BMT | Basement Area (Unfinished) | FUS | Second Story Living Area (Finished) | SPE | Pool Enclosure |
| BRN | Barn | GAR | Garage | TQS | Three Quarters Story (Finished) |
| CAN | Canopy | GAZ | Gazebo | UAT | Attic Area (Unfinished) |
| CLP | Loading Platform | GRN | Greenhouse | UHS | Half Story (Unfinished) |
| FAT | Attic Area (Finished) | GXT | Garage Extension Front | UST | Utility Area (Unfinished) |
| FCP | Carport | KEN | Kennel | UTQ | Three Quarters Story (Unfinished) |
| FEP | Enclosed Porch | MZ1 | Mezzanine, Unfinished | UUA | Unfinished Utility Attic |
| FHS | Half Story (Finished) | PRG | Pergola | UUS | Full Upper 2nd Story (Unfinished) |
| FOP | Open or Screened in Porch | PRT | Portico | WDK | Wood Deck |
| PTO | Patio | ||||
Building |
Details |
Land |
|||
| Building value | $ 279,300 | Bedrooms | 4 Bedrooms | USE CODE | 1040 |
| Replacement Cost | $377,395 | Bathrooms | 3 Full-0 Half | Lot Size (Acres) | 0.19 |
| Model | Residential | Total Rooms | 8 Rooms | Appraised Value | $ 151,900 |
| Style | Duplex | Heat Fuel | Gas | Assessed Value | $ 151,900 |
| Grade | Average | Heat Type | Hot Water | ||
| Year Built | 1962 | AC Type | None | ||
| Effective depreciation | 26 | Interior Floors | Carpet | ||
| Stories | 2 Stories | Interior Walls | Drywall | ||
| Living Area sq/ft | 2,160 | Exterior Walls | Vinyl Siding | ||
| Gross Area sq/ft | 3,483 | Roof Structure | Gable/Hip | ||
| Roof Cover | Asph/F Gls/Cmp | ||||
| Code | Description | Units/SQ ft | Appraised Value | Assessed Value |
| BFA | Bsmt Fin-Avg | 1000 | $ 12,800 | $ 12,800 |
| BMT | Basement-Unfinished | 1040 | $ 20,200 | $ 20,200 |
| PAT2 | Patio-Good | 234 | $ 1,900 | $ 1,900 |
| FEP | Enclosed porch-roof,ceiling | 49 | $ 3,800 | $ 3,800 |
| SOL2 | Solar PV Panels 36 - 48 | 40 | $ 0 | $ 0 |