
| Appraised Value | Assessed Value | |
| Building Value | $ 314,900 | $ 314,900 |
| Extra Features | $ 33,800 | $ 33,800 |
| Outbuildings | $ 44,200 | $ 44,200 |
| Land Value | $ 154,800 | $ 154,800 |
| Totals | $ 547,700 | $ 547,700 |
| 2026
Community Preservation Act Tax $ 55.67 Hyannis FD Tax (Commercial) $ 0 Hyannis FD Tax (Residential) $ 1,314.48 Town Tax (Commercial) $ 0 Town Tax (Residential) $ 1,855.81 Total: $ 3,225.96 |
2025
Community Preservation Act Tax $ 60.80 Hyannis FD Tax (Commercial) $ 0 Hyannis FD Tax (Residential) $ 1,225.11 Town Tax (Commercial) $ 0 Town Tax (Residential) $ 2,026.54 Total: $ 3,312.45 |
| Residential Exemption Received= $274,787 |
Residential Exemption Received= $233,792 |
| Owner: | Sale Date | Book/Page: | Sale Price: |
| LITENSKI, ERENEU | 2017-03-16 | 30355/0098 | $245000 |
| SHINN, RICHARD A | 2012-01-17 | 26004/0327 | $49750 |
| SHINN, JACQUELINE F GOODWIN ESTATE OF | 2011-06-16 | 25511/0130 | $0 |
| GOODWIN, JACQUELINE F | 1979-03-02 | 2880/0154 | $0 |
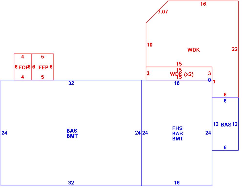
| As Built Cards:Click card # to view: | Card #1 | |

| B2N | Barn-any 2nd story area | FPC | Open Porch Concrete Floor | REF | Reference Only |
| BAS | First Floor, Living Area | FTS | Third Story Living Area (Finished) | SOL | Solarium |
| BMT | Basement Area (Unfinished) | FUS | Second Story Living Area (Finished) | SPE | Pool Enclosure |
| BRN | Barn | GAR | Garage | TQS | Three Quarters Story (Finished) |
| CAN | Canopy | GAZ | Gazebo | UAT | Attic Area (Unfinished) |
| CLP | Loading Platform | GRN | Greenhouse | UHS | Half Story (Unfinished) |
| FAT | Attic Area (Finished) | GXT | Garage Extension Front | UST | Utility Area (Unfinished) |
| FCP | Carport | KEN | Kennel | UTQ | Three Quarters Story (Unfinished) |
| FEP | Enclosed Porch | MZ1 | Mezzanine, Unfinished | UUA | Unfinished Utility Attic |
| FHS | Half Story (Finished) | PRG | Pergola | UUS | Full Upper 2nd Story (Unfinished) |
| FOP | Open or Screened in Porch | PRT | Portico | WDK | Wood Deck |
| PTO | Patio | ||||
Building |
Details |
Land |
|||
| Building value | $ 314,900 | Bedrooms | 3 Bedrooms | USE CODE | 1010 |
| Replacement Cost | $408,969 | Bathrooms | 2 Full-0 Half | Lot Size (Acres) | 0.35 |
| Model | Residential | Total Rooms | 7 Rooms | Appraised Value | $ 154,800 |
| Style | Ranch | Heat Fuel | Gas | Assessed Value | $ 154,800 |
| Grade | Average | Heat Type | Hot Water | ||
| Year Built | 1972 | AC Type | None | ||
| Effective depreciation | 23 | Interior Floors | CarpetHardwood | ||
| Stories | 1 1/2 Stories | Interior Walls | Drywall | ||
| Living Area sq/ft | 1,416 | Exterior Walls | Wood Shingle | ||
| Gross Area sq/ft | 3,249 | Roof Structure | Gable/Hip | ||
| Roof Cover | Asph/F Gls/Cmp | ||||
| Code | Description | Units/SQ ft | Appraised Value | Assessed Value |
| FPL1 | Fireplace 1 story | 1 | $ 3,900 | $ 3,900 |
| GAR2 | Det Gar-w/FHS | 672 | $ 34,800 | $ 34,800 |
| WDCK | Wood Decking w/railings | 72 | $ 2,100 | $ 2,100 |
| WDCK | Wood Decking w/railings | 434 | $ 5,100 | $ 5,100 |
| BMT | Basement-Unfinished | 1152 | $ 22,400 | $ 22,400 |
| SHED | Shed | 126 | $ 2,200 | $ 2,200 |
| FEP | Enclosed porch-roof,ceiling | 30 | $ 3,100 | $ 3,100 |
| FOP | Open Porch-roof-ceiling | 24 | $ 1,600 | $ 1,600 |
| FOP | Open Porch-roof-ceiling | 56 | $ 2,800 | $ 2,800 |
| SOL1 | Solar PV Panels 12 - 24 | 18 | $ 0 | $ 0 |