
| Appraised Value | Assessed Value | |
| Building Value | $ 218,300 | $ 218,300 |
| Extra Features | $ 22,800 | $ 22,800 |
| Outbuildings | $ 17,600 | $ 17,600 |
| Land Value | $ 151,800 | $ 151,800 |
| Totals | $ 410,500 | $ 410,500 |
| 2026
Community Preservation Act Tax $ 27.69 Hyannis FD Tax (Commercial) $ 0 Hyannis FD Tax (Residential) $ 985.20 Town Tax (Commercial) $ 0 Town Tax (Residential) $ 922.85 Total: $ 1,935.74 |
2025
Community Preservation Act Tax $ 32.63 Hyannis FD Tax (Commercial) $ 0 Hyannis FD Tax (Residential) $ 909.87 Town Tax (Commercial) $ 0 Town Tax (Residential) $ 1,087.55 Total: $ 2,030.05 |
| Residential Exemption Received= $274,787 |
Residential Exemption Received= $233,792 |
| Owner: | Sale Date | Book/Page: | Sale Price: |
| LUTZ, SHIRLEY A TR | 2023-09-11 | C233909/0 | $1 |
| LUTZ, SHIRLEY A | 2022-08-16 | 1484747/0 | $0 |
| LUTZ, WALTER N & SHIRLEY A | 1962-11-23 | C29542/0 | $0 |
AsBuilt Card N/A

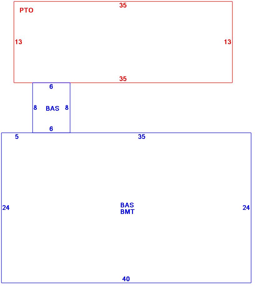
| B2N | Barn-any 2nd story area | FPC | Open Porch Concrete Floor | REF | Reference Only |
| BAS | First Floor, Living Area | FTS | Third Story Living Area (Finished) | SOL | Solarium |
| BMT | Basement Area (Unfinished) | FUS | Second Story Living Area (Finished) | SPE | Pool Enclosure |
| BRN | Barn | GAR | Garage | TQS | Three Quarters Story (Finished) |
| CAN | Canopy | GAZ | Gazebo | UAT | Attic Area (Unfinished) |
| CLP | Loading Platform | GRN | Greenhouse | UHS | Half Story (Unfinished) |
| FAT | Attic Area (Finished) | GXT | Garage Extension Front | UST | Utility Area (Unfinished) |
| FCP | Carport | KEN | Kennel | UTQ | Three Quarters Story (Unfinished) |
| FEP | Enclosed Porch | MZ1 | Mezzanine, Unfinished | UUA | Unfinished Utility Attic |
| FHS | Half Story (Finished) | PRG | Pergola | UUS | Full Upper 2nd Story (Unfinished) |
| FOP | Open or Screened in Porch | PRT | Portico | WDK | Wood Deck |
| PTO | Patio | ||||
Building |
Details |
Land |
|||
| Building value | $ 218,300 | Bedrooms | 3 Bedrooms | USE CODE | 1010 |
| Replacement Cost | $294,979 | Bathrooms | 1 Full-0 Half | Lot Size (Acres) | 0.26 |
| Model | Residential | Total Rooms | 5 Rooms | Appraised Value | $ 151,800 |
| Style | Ranch | Heat Fuel | Oil | Assessed Value | $ 151,800 |
| Grade | Average Minus | Heat Type | Hot Water | ||
| Year Built | 1964 | AC Type | None | ||
| Effective depreciation | 26 | Interior Floors | Carpet | ||
| Stories | 1 Story | Interior Walls | Drywall | ||
| Living Area sq/ft | 1,008 | Exterior Walls | Wood Shingle | ||
| Gross Area sq/ft | 2,423 | Roof Structure | Gable/Hip | ||
| Roof Cover | Asph/F Gls/Cmp | ||||
| Code | Description | Units/SQ ft | Appraised Value | Assessed Value |
| FPL1 | Fireplace 1 story | 1 | $ 3,700 | $ 3,700 |
| FGR2 | Garage- Avg-Wd Shingle | 336 | $ 8,600 | $ 8,600 |
| BMT | Basement-Unfinished | 960 | $ 19,100 | $ 19,100 |
| GEN | Emergency Generator | 1 | $ 5,100 | $ 5,100 |
| PAT1 | Patio- Average | 455 | $ 2,500 | $ 2,500 |
| SHED | Shed | 80 | $ 1,400 | $ 1,400 |