
| Appraised Value | Assessed Value | |
| Building Value | $ 313,400 | $ 313,400 |
| Extra Features | $ 4,100 | $ 4,100 |
| Outbuildings | $ 1,400 | $ 1,400 |
| Land Value | $ 176,200 | $ 176,200 |
| Totals | $ 495,100 | $ 495,100 |
| 2026
Community Preservation Act Tax $ 44.94 Hyannis FD Tax (Commercial) $ 0 Hyannis FD Tax (Residential) $ 1,188.24 Town Tax (Commercial) $ 0 Town Tax (Residential) $ 1,498.13 Total: $ 2,731.31 |
2025
Community Preservation Act Tax $ 46.58 Hyannis FD Tax (Commercial) $ 0 Hyannis FD Tax (Residential) $ 1,065.98 Town Tax (Commercial) $ 0 Town Tax (Residential) $ 1,552.53 Total: $ 2,665.09 |
| Residential Exemption Received= $274,787 |
Residential Exemption Received= $233,792 |
| Owner: | Sale Date | Book/Page: | Sale Price: |
| DONNELLAN, JOHN J | 2025-12-03 | 37336/329 | $370500 |
| CHAPMAN, DAVID C ESTATE OF | 2025-04-11 | BA25P1256EA /0 | $0 |
| CHAPMAN, DAVID C | 2014-12-29 | 28597/0273 | $1 |
| CHAPMAN, DAVID C & JACKLYN | 1989-06-19 | 6776/0343 | $1 |
| CHAPMAN, MARTHA C | 1978-12-12 | 2838/0129 | $0 |
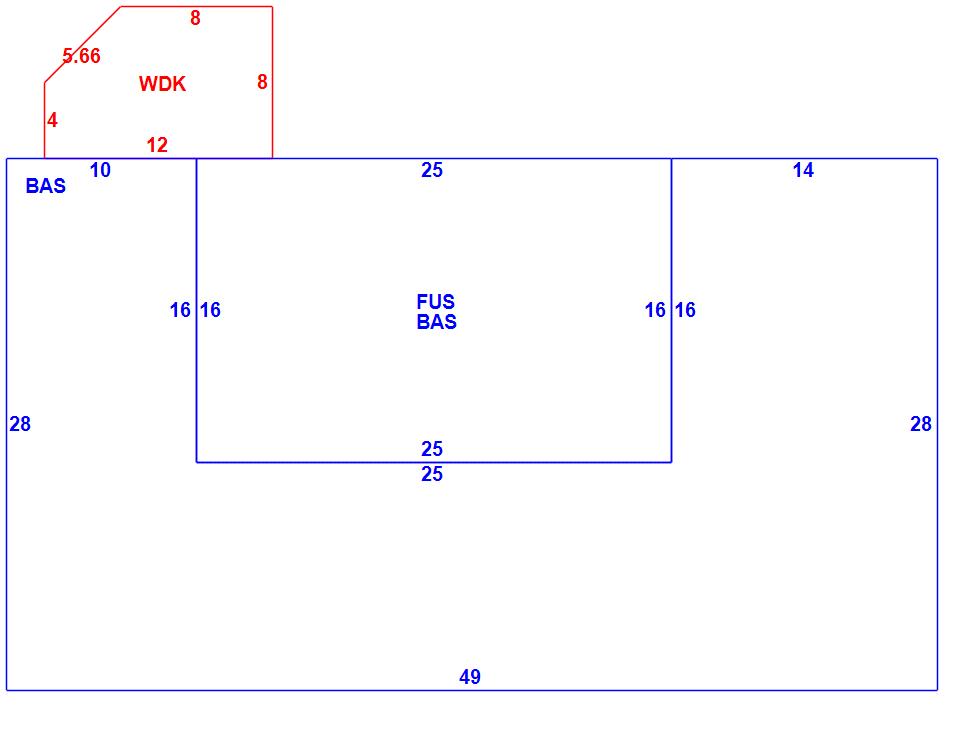
| As Built Cards:Click card # to view: | Card #1 | | Card #2 | |

| B2N | Barn-any 2nd story area | FPC | Open Porch Concrete Floor | REF | Reference Only |
| BAS | First Floor, Living Area | FTS | Third Story Living Area (Finished) | SOL | Solarium |
| BMT | Basement Area (Unfinished) | FUS | Second Story Living Area (Finished) | SPE | Pool Enclosure |
| BRN | Barn | GAR | Garage | TQS | Three Quarters Story (Finished) |
| CAN | Canopy | GAZ | Gazebo | UAT | Attic Area (Unfinished) |
| CLP | Loading Platform | GRN | Greenhouse | UHS | Half Story (Unfinished) |
| FAT | Attic Area (Finished) | GXT | Garage Extension Front | UST | Utility Area (Unfinished) |
| FCP | Carport | KEN | Kennel | UTQ | Three Quarters Story (Unfinished) |
| FEP | Enclosed Porch | MZ1 | Mezzanine, Unfinished | UUA | Unfinished Utility Attic |
| FHS | Half Story (Finished) | PRG | Pergola | UUS | Full Upper 2nd Story (Unfinished) |
| FOP | Open or Screened in Porch | PRT | Portico | WDK | Wood Deck |
| PTO | Patio | ||||
Building |
Details |
Land |
|||
| Building value | $ 313,400 | Bedrooms | 3 Bedrooms | USE CODE | 1010 |
| Replacement Cost | $454,164 | Bathrooms | 2 Full-0 Half | Lot Size (Acres) | 0.2 |
| Model | Residential | Total Rooms | 5 Rooms | Appraised Value | $ 176,200 |
| Style | Modern/Contemp | Heat Fuel | Gas | Assessed Value | $ 176,200 |
| Grade | Average | Heat Type | Typical | ||
| Year Built | 1941 | AC Type | None | ||
| Effective depreciation | 31 | Interior Floors | CarpetHardwood | ||
| Stories | 2 Stories | Interior Walls | Plastered | ||
| Living Area sq/ft | 1,772 | Exterior Walls | Wood Shingle | ||
| Gross Area sq/ft | 1,860 | Roof Structure | Gable/Hip | ||
| Roof Cover | Asph/F Gls/Cmp | ||||
| Code | Description | Units/SQ ft | Appraised Value | Assessed Value |
| FPL2 | Fireplace 1.5 stories | 1 | $ 4,100 | $ 4,100 |
| WDCK | Wood Decking w/railings | 88 | $ 1,400 | $ 1,400 |