
| Appraised Value | Assessed Value | |
| Building Value | $ 241,900 | $ 241,900 |
| Extra Features | $ 39,300 | $ 39,300 |
| Outbuildings | $ 2,100 | $ 2,100 |
| Land Value | $ 154,400 | $ 154,400 |
| Totals | $ 437,700 | $ 437,700 |
| 2026
Community Preservation Act Tax $ 89.29 Hyannis FD Tax (Commercial) $ 0 Hyannis FD Tax (Residential) $ 1,050.48 Town Tax (Commercial) $ 0 Town Tax (Residential) $ 2,976.36 Total: $ 4,116.13 |
2025
Community Preservation Act Tax $ 86.80 Hyannis FD Tax (Commercial) $ 0 Hyannis FD Tax (Residential) $ 971.38 Town Tax (Commercial) $ 0 Town Tax (Residential) $ 2,893.29 Total: $ 3,951.47 |
| Owner: | Sale Date | Book/Page: | Sale Price: |
| HADAWAR, VICTOR | 2015-11-10 | 29264/0141 | $150000 |
| SHEA, JOHN C TR | 2015-11-10 | 29264/0131 | $123000 |
| ELLIS, JASON | 2002-07-12 | 15359/0033 | $151800 |
| PERALES, ROGER P | 1999-09-30 | 12577/0087 | $111900 |
| SPARLING, ROBERT C & LINDA K | 1997-12-15 | 11115/0031 | $88000 |
| MASTERSON, ROBERT H SR & KATHLEEN T | 1989-05-15 | 6736/0250 | $109000 |
| SHUM, YUL CHUEN | 1984-08-15 | 4215/0006 | $67000 |
| RAPOSO, GIL | 1984-03-15 | 4030/0111 | $9500 |
| CONSAVAGE, WILLIAM J | 1982-11-15 | 3596/0140 | $6500 |
| As Built Cards:Click card # to view: | Card #1 | |

| B2N | Barn-any 2nd story area | FPC | Open Porch Concrete Floor | REF | Reference Only |
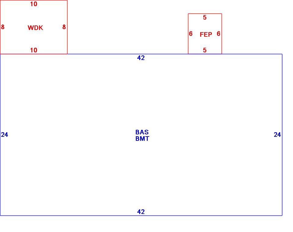
| BAS | First Floor, Living Area | FTS | Third Story Living Area (Finished) | SOL | Solarium |
| BMT | Basement Area (Unfinished) | FUS | Second Story Living Area (Finished) | SPE | Pool Enclosure |
| BRN | Barn | GAR | Garage | TQS | Three Quarters Story (Finished) |
| CAN | Canopy | GAZ | Gazebo | UAT | Attic Area (Unfinished) |
| CLP | Loading Platform | GRN | Greenhouse | UHS | Half Story (Unfinished) |
| FAT | Attic Area (Finished) | GXT | Garage Extension Front | UST | Utility Area (Unfinished) |
| FCP | Carport | KEN | Kennel | UTQ | Three Quarters Story (Unfinished) |
| FEP | Enclosed Porch | MZ1 | Mezzanine, Unfinished | UUA | Unfinished Utility Attic |
| FHS | Half Story (Finished) | PRG | Pergola | UUS | Full Upper 2nd Story (Unfinished) |
| FOP | Open or Screened in Porch | PRT | Portico | WDK | Wood Deck |
| PTO | Patio | ||||
Building |
Details |
Land |
|||
| Building value | $ 241,900 | Bedrooms | 3 Bedrooms | USE CODE | 1010 |
| Replacement Cost | $294,979 | Bathrooms | 1 Full-1 Half | Lot Size (Acres) | 0.34 |
| Model | Residential | Total Rooms | 6 Rooms | Appraised Value | $ 154,400 |
| Style | Ranch | Heat Fuel | Gas | Assessed Value | $ 154,400 |
| Grade | Average Minus | Heat Type | Hot Water | ||
| Year Built | 1984 | AC Type | None | ||
| Effective depreciation | 18 | Interior Floors | Carpet | ||
| Stories | 1 Story | Interior Walls | Drywall | ||
| Living Area sq/ft | 1,008 | Exterior Walls | Wood Shingle | ||
| Gross Area sq/ft | 2,126 | Roof Structure | Gable/Hip | ||
| Roof Cover | Asph/F Gls/Cmp | ||||
| Code | Description | Units/SQ ft | Appraised Value | Assessed Value |
| FPL1 | Fireplace 1 story | 1 | $ 4,100 | $ 4,100 |
| BFA | Bsmt Fin-Avg | 700 | $ 10,000 | $ 10,000 |
| WDCK | Wood Decking w/railings | 80 | $ 2,100 | $ 2,100 |
| FEP | Enclosed porch-roof,ceiling | 30 | $ 3,300 | $ 3,300 |
| BMT | Basement-Unfinished | 1008 | $ 21,900 | $ 21,900 |