
| Appraised Value | Assessed Value | |
| Building Value | $ 358,200 | $ 358,200 |
| Extra Features | $ 28,300 | $ 28,300 |
| Outbuildings | $ 3,500 | $ 3,500 |
| Land Value | $ 239,600 | $ 239,600 |
| Totals | $ 629,600 | $ 629,600 |
| 2026
C.O.M.M. FD Tax (Commercial) $ 0 C.O.M.M. FD Tax (Residential) $ 724.04 Community Preservation Act Tax $ 72.38 Town Tax (Commercial) $ 0 Town Tax (Residential) $ 2,412.73 Total: $ 3,209.15 |
2025
C.O.M.M. FD Tax (Commercial) $ 0 C.O.M.M. FD Tax (Residential) $ 684.71 Community Preservation Act Tax $ 75.29 Town Tax (Commercial) $ 0 Town Tax (Residential) $ 2,509.56 Total: $ 3,269.56 |
| Residential Exemption Received= $274,787 |
Residential Exemption Received= $233,792 |
| Owner: | Sale Date | Book/Page: | Sale Price: |
| AMIN, JIGNESH | 2014-04-30 | 28115/0228 | $325000 |
| RITCHIE, ROBERT W & ELAINE T | 2014-04-22 | 28099/0225 | $100 |
| RITCHIE, ROBERT & ELAINE T | 2008-05-14 | 22906/0012 | $1 |
| RITCHIE, ROBERT & ELAINE T | 1992-06-15 | 8082/0170 | $45000 |
| K B DEVELOPMENT CORP | 1990-11-15 | 7349/0182 | $35000 |
| TRAYWICK, KAY W | 1989-03-15 | 6659/0231 | $1 |
| TRAYWICK, MARTIN C & KAY TRS | 1984-08-15 | 4231/0310 | $35000 |
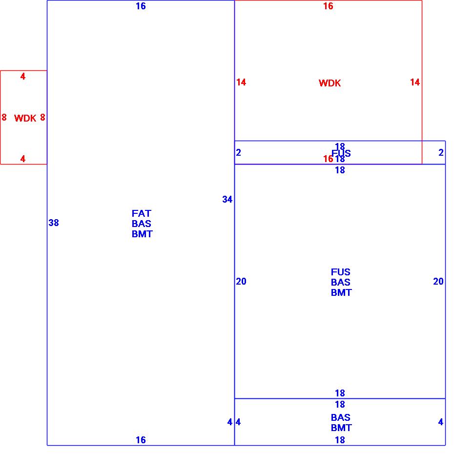
| As Built Cards:Click card # to view: | Card #1 | |

| B2N | Barn-any 2nd story area | FPC | Open Porch Concrete Floor | REF | Reference Only |
| BAS | First Floor, Living Area | FTS | Third Story Living Area (Finished) | SOL | Solarium |
| BMT | Basement Area (Unfinished) | FUS | Second Story Living Area (Finished) | SPE | Pool Enclosure |
| BRN | Barn | GAR | Garage | TQS | Three Quarters Story (Finished) |
| CAN | Canopy | GAZ | Gazebo | UAT | Attic Area (Unfinished) |
| CLP | Loading Platform | GRN | Greenhouse | UHS | Half Story (Unfinished) |
| FAT | Attic Area (Finished) | GXT | Garage Extension Front | UST | Utility Area (Unfinished) |
| FCP | Carport | KEN | Kennel | UTQ | Three Quarters Story (Unfinished) |
| FEP | Enclosed Porch | MZ1 | Mezzanine, Unfinished | UUA | Unfinished Utility Attic |
| FHS | Half Story (Finished) | PRG | Pergola | UUS | Full Upper 2nd Story (Unfinished) |
| FOP | Open or Screened in Porch | PRT | Portico | WDK | Wood Deck |
| PTO | Patio | ||||
Building |
Details |
Land |
|||
| Building value | $ 358,200 | Bedrooms | 3 Bedrooms | USE CODE | 1010 |
| Replacement Cost | $421,376 | Bathrooms | 2 Full-1 Half | Lot Size (Acres) | 0.26 |
| Model | Residential | Total Rooms | 7 Rooms | Appraised Value | $ 239,600 |
| Style | Cape Cod | Heat Fuel | Gas | Assessed Value | $ 239,600 |
| Grade | Average | Heat Type | Hot Air | ||
| Year Built | 1992 | AC Type | None | ||
| Effective depreciation | 15 | Interior Floors | CarpetVinyl/Asphalt | ||
| Stories | 2 Stories | Interior Walls | Drywall | ||
| Living Area sq/ft | 1,527 | Exterior Walls | Wood Shingle | ||
| Gross Area sq/ft | 3,340 | Roof Structure | Gable/Hip | ||
| Roof Cover | Asph/F Gls/Cmp | ||||
| Code | Description | Units/SQ ft | Appraised Value | Assessed Value |
| FPL2 | Fireplace 1.5 stories | 1 | $ 5,100 | $ 5,100 |
| WDCK | Wood Decking w/railings | 256 | $ 3,500 | $ 3,500 |
| BMT | Basement-Unfinished | 1040 | $ 23,200 | $ 23,200 |