
| Appraised Value | Assessed Value | |
| Building Value | $ 271,000 | $ 271,000 |
| Extra Features | $ 21,100 | $ 21,100 |
| Outbuildings | $ 3,200 | $ 3,200 |
| Land Value | $ 160,800 | $ 160,800 |
| Totals | $ 456,100 | $ 456,100 |
| 2026
C.O.M.M. FD Tax (Commercial) $ 0 C.O.M.M. FD Tax (Residential) $ 524.52 Community Preservation Act Tax $ 36.99 Town Tax (Commercial) $ 0 Town Tax (Residential) $ 1,232.93 Total: $ 1,794.44 |
2025
C.O.M.M. FD Tax (Commercial) $ 0 C.O.M.M. FD Tax (Residential) $ 508.19 Community Preservation Act Tax $ 43.33 Town Tax (Commercial) $ 0 Town Tax (Residential) $ 1,444.27 Total: $ 1,995.79 |
| Residential Exemption Received= $274,787 |
Residential Exemption Received= $233,792 |
| Owner: | Sale Date | Book/Page: | Sale Price: |
| MORRILL, EDITH M | 2019-05-08 | 32005/0297 | $340000 |
| CANTILLON, JAMES J & CHRISTINE M | 2003-01-31 | 16334/0342 | $288000 |
| MEYERS, THOMAS C & CHRISTINE M | 2000-12-20 | 13441/0147 | $224000 |
| JUNQUEIRA, JOAO L | 2000-08-15 | 13183/0132 | $115000 |
| SMITH, LAWRENCE E | 1990-03-15 | 7091/0211 | $250 |
| SMITH LAWRENCE E & ROGERS, WILLIAM J | 1987-08-15 | 5709/0110 | $113000 |
| CAFOLLA, RAIMONDO R | 1971-12-08 | 1569/0062 | $0 |
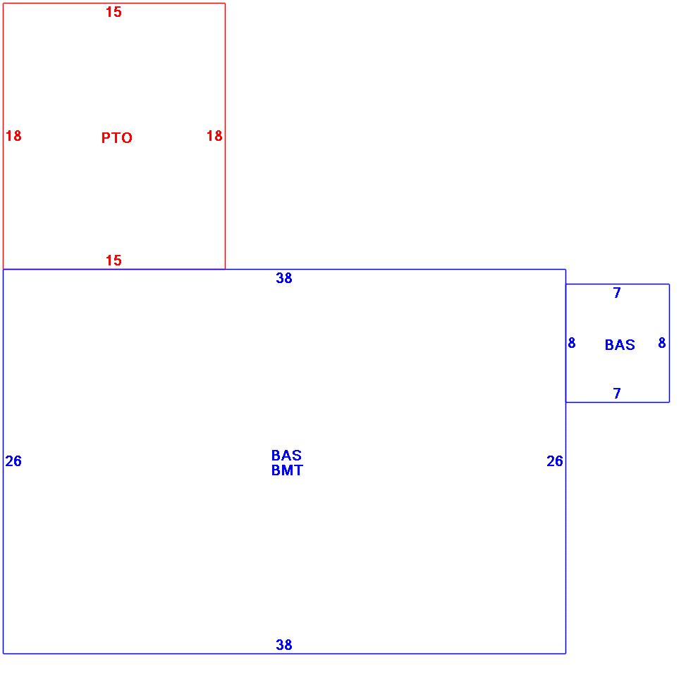
| As Built Cards:Click card # to view: | Card #1 | |

| B2N | Barn-any 2nd story area | FPC | Open Porch Concrete Floor | REF | Reference Only |
| BAS | First Floor, Living Area | FTS | Third Story Living Area (Finished) | SOL | Solarium |
| BMT | Basement Area (Unfinished) | FUS | Second Story Living Area (Finished) | SPE | Pool Enclosure |
| BRN | Barn | GAR | Garage | TQS | Three Quarters Story (Finished) |
| CAN | Canopy | GAZ | Gazebo | UAT | Attic Area (Unfinished) |
| CLP | Loading Platform | GRN | Greenhouse | UHS | Half Story (Unfinished) |
| FAT | Attic Area (Finished) | GXT | Garage Extension Front | UST | Utility Area (Unfinished) |
| FCP | Carport | KEN | Kennel | UTQ | Three Quarters Story (Unfinished) |
| FEP | Enclosed Porch | MZ1 | Mezzanine, Unfinished | UUA | Unfinished Utility Attic |
| FHS | Half Story (Finished) | PRG | Pergola | UUS | Full Upper 2nd Story (Unfinished) |
| FOP | Open or Screened in Porch | PRT | Portico | WDK | Wood Deck |
| PTO | Patio | ||||
Building |
Details |
Land |
|||
| Building value | $ 271,000 | Bedrooms | 3 Bedrooms | USE CODE | 1010 |
| Replacement Cost | $338,809 | Bathrooms | 2 Full-0 Half | Lot Size (Acres) | 0.29 |
| Model | Residential | Total Rooms | 5 Rooms | Appraised Value | $ 160,800 |
| Style | Ranch | Heat Fuel | Gas | Assessed Value | $ 160,800 |
| Grade | Average | Heat Type | Hot Air | ||
| Year Built | 1958 | AC Type | Central | ||
| Effective depreciation | 20 | Interior Floors | Hardwood | ||
| Stories | 1 Story | Interior Walls | Plastered | ||
| Living Area sq/ft | 1,044 | Exterior Walls | Wood Shingle | ||
| Gross Area sq/ft | 2,302 | Roof Structure | Gable/Hip | ||
| Roof Cover | Asph/F Gls/Cmp | ||||
| Code | Description | Units/SQ ft | Appraised Value | Assessed Value |
| PAT2 | Patio-Good | 270 | $ 2,200 | $ 2,200 |
| BMT | Basement-Unfinished | 988 | $ 21,100 | $ 21,100 |
| SHED | Shed | 120 | $ 1,000 | $ 1,000 |