
| Appraised Value | Assessed Value | |
| Building Value | $ 428,500 | $ 428,500 |
| Extra Features | $ 28,700 | $ 28,700 |
| Outbuildings | $ 3,000 | $ 3,000 |
| Land Value | $ 149,300 | $ 149,300 |
| Totals | $ 609,500 | $ 609,500 |
| 2026
C.O.M.M. FD Tax (Commercial) $ 0 C.O.M.M. FD Tax (Residential) $ 700.93 Community Preservation Act Tax $ 124.34 Town Tax (Commercial) $ 0 Town Tax (Residential) $ 4,144.60 Total: $ 4,969.87 |
2025
C.O.M.M. FD Tax (Commercial) $ 0 C.O.M.M. FD Tax (Residential) $ 678.85 Community Preservation Act Tax $ 122.90 Town Tax (Commercial) $ 0 Town Tax (Residential) $ 4,096.68 Total: $ 4,898.43 |
| Owner: | Sale Date | Book/Page: | Sale Price: |
| KAGANER, EUGENE & ANNA | 2021-01-21 | 33709/199 | $403000 |
| POZZI, ELEANOR A | 1997-08-25 | 10916/0275 | $136500 |
| MELLO, ROGER A & DONNA M | 1991-12-15 | 7776/0057 | $1 |
| MELLO, ROGER A & MANUEL | 1985-05-15 | 4539/0212 | $12800 |
| JODRAY, DONALD G & CHARLE | 1984-03-15 | 4045/0230 | $0 |
| JODRAY, DONALD G | 1984-03-15 | 4045/0229 | $0 |
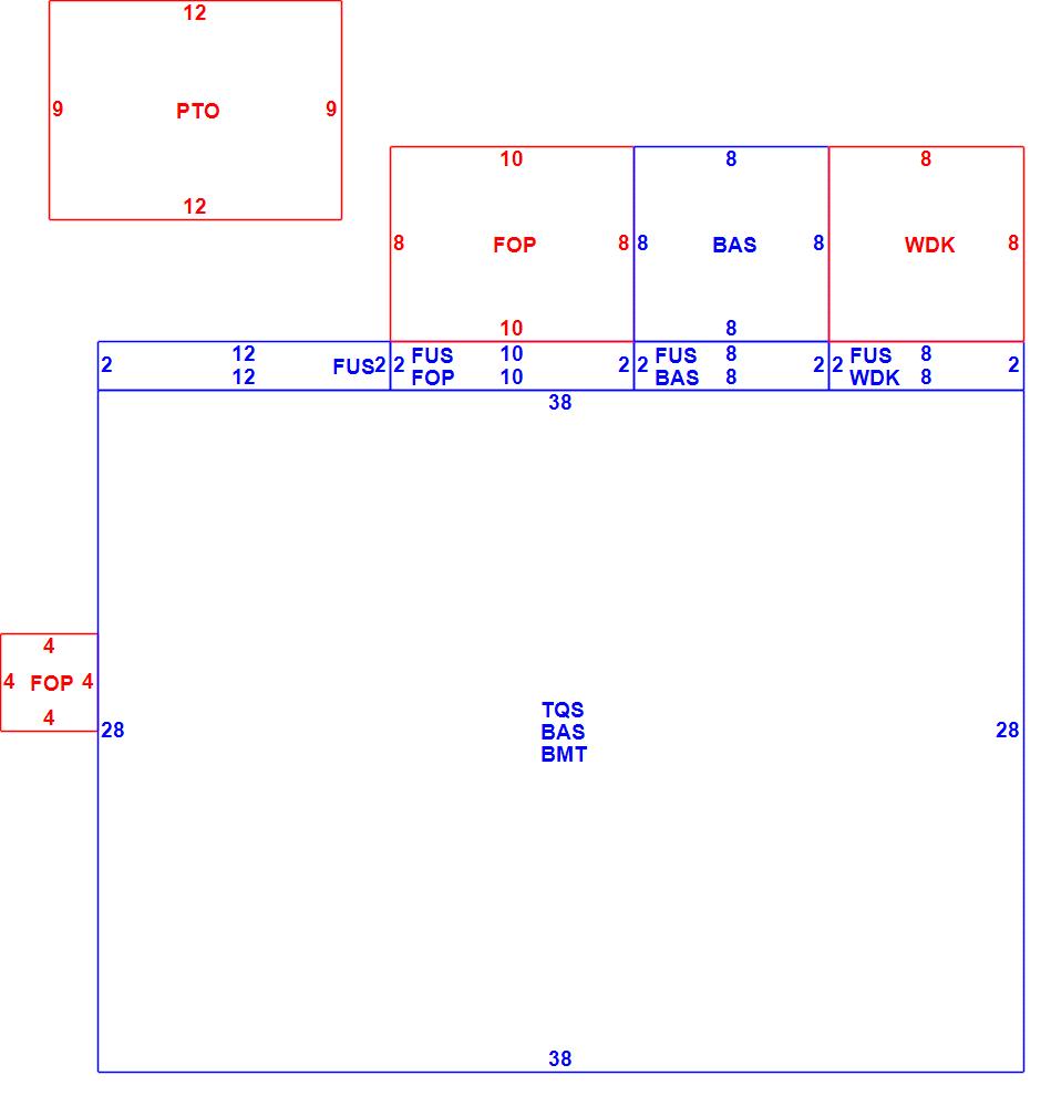
| As Built Cards:Click card # to view: | Card #1 | | Card #2 | |

| B2N | Barn-any 2nd story area | FPC | Open Porch Concrete Floor | REF | Reference Only |
| BAS | First Floor, Living Area | FTS | Third Story Living Area (Finished) | SOL | Solarium |
| BMT | Basement Area (Unfinished) | FUS | Second Story Living Area (Finished) | SPE | Pool Enclosure |
| BRN | Barn | GAR | Garage | TQS | Three Quarters Story (Finished) |
| CAN | Canopy | GAZ | Gazebo | UAT | Attic Area (Unfinished) |
| CLP | Loading Platform | GRN | Greenhouse | UHS | Half Story (Unfinished) |
| FAT | Attic Area (Finished) | GXT | Garage Extension Front | UST | Utility Area (Unfinished) |
| FCP | Carport | KEN | Kennel | UTQ | Three Quarters Story (Unfinished) |
| FEP | Enclosed Porch | MZ1 | Mezzanine, Unfinished | UUA | Unfinished Utility Attic |
| FHS | Half Story (Finished) | PRG | Pergola | UUS | Full Upper 2nd Story (Unfinished) |
| FOP | Open or Screened in Porch | PRT | Portico | WDK | Wood Deck |
| PTO | Patio | ||||
Building |
Details |
Land |
|||
| Building value | $ 428,500 | Bedrooms | 3 Bedrooms | USE CODE | 1010 |
| Replacement Cost | $504,099 | Bathrooms | 2 Full-1 Half | Lot Size (Acres) | 0.17 |
| Model | Residential | Total Rooms | 7 Rooms | Appraised Value | $ 149,300 |
| Style | Cape Cod | Heat Fuel | Gas | Assessed Value | $ 149,300 |
| Grade | Average | Heat Type | Hot Water | ||
| Year Built | 1991 | AC Type | None | ||
| Effective depreciation | 15 | Interior Floors | HardwoodVinyl/Asphalt | ||
| Stories | 1 3/4 Stories | Interior Walls | Drywall | ||
| Living Area sq/ft | 1,912 | Exterior Walls | Wood Shingle | ||
| Gross Area sq/ft | 3,652 | Roof Structure | Gable/Hip | ||
| Roof Cover | Asph/F Gls/Cmp | ||||
| Code | Description | Units/SQ ft | Appraised Value | Assessed Value |
| FOP | Open Porch-roof-ceiling | 116 | $ 5,200 | $ 5,200 |
| BMT | Basement-Unfinished | 1064 | $ 23,500 | $ 23,500 |
| PAT2 | Patio-Good | 108 | $ 900 | $ 900 |
| WDCK | Wood Decking w/railings | 80 | $ 1,500 | $ 1,500 |
| SHED | Shed | 80 | $ 600 | $ 600 |