
| Appraised Value | Assessed Value | |
| Building Value | $ 513,500 | $ 513,500 |
| Extra Features | $ 37,900 | $ 37,900 |
| Outbuildings | $ 3,300 | $ 3,300 |
| Land Value | $ 166,800 | $ 166,800 |
| Totals | $ 721,500 | $ 721,500 |
| 2026
C.O.M.M. FD Tax (Commercial) $ 0 C.O.M.M. FD Tax (Residential) $ 829.73 Community Preservation Act Tax $ 91.13 Town Tax (Commercial) $ 0 Town Tax (Residential) $ 3,037.65 Total: $ 3,958.51 |
2025
C.O.M.M. FD Tax (Commercial) $ 0 C.O.M.M. FD Tax (Residential) $ 804.08 Community Preservation Act Tax $ 96.90 Town Tax (Commercial) $ 0 Town Tax (Residential) $ 3,229.93 Total: $ 4,130.91 |
| Residential Exemption Received= $274,787 |
Residential Exemption Received= $233,792 |
| Owner: | Sale Date | Book/Page: | Sale Price: |
| ALEXANDER, GEORGE P & BETTE E | 2001-11-09 | 14431/0188 | $80000 |
| BRISTOL, JAMES E III TR | 1998-05-27 | 11456/0001 | $275000 |
| FIDELITY FINANCIAL INC | 1998-04-08 | 11342/0207 | $211500 |
| KUHN, CHRISTOPHER P TR | 1996-10-22 | 10462/0248 | $0 |
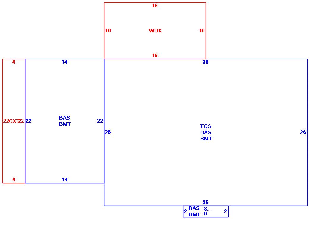
| As Built Cards:Click card # to view: | Card #1 | |

| B2N | Barn-any 2nd story area | FPC | Open Porch Concrete Floor | REF | Reference Only |
| BAS | First Floor, Living Area | FTS | Third Story Living Area (Finished) | SOL | Solarium |
| BMT | Basement Area (Unfinished) | FUS | Second Story Living Area (Finished) | SPE | Pool Enclosure |
| BRN | Barn | GAR | Garage | TQS | Three Quarters Story (Finished) |
| CAN | Canopy | GAZ | Gazebo | UAT | Attic Area (Unfinished) |
| CLP | Loading Platform | GRN | Greenhouse | UHS | Half Story (Unfinished) |
| FAT | Attic Area (Finished) | GXT | Garage Extension Front | UST | Utility Area (Unfinished) |
| FCP | Carport | KEN | Kennel | UTQ | Three Quarters Story (Unfinished) |
| FEP | Enclosed Porch | MZ1 | Mezzanine, Unfinished | UUA | Unfinished Utility Attic |
| FHS | Half Story (Finished) | PRG | Pergola | UUS | Full Upper 2nd Story (Unfinished) |
| FOP | Open or Screened in Porch | PRT | Portico | WDK | Wood Deck |
| PTO | Patio | ||||
Building |
Details |
Land |
|||
| Building value | $ 513,500 | Bedrooms | 3 Bedrooms | USE CODE | 1010 |
| Replacement Cost | $577,008 | Bathrooms | 3 Full-0 Half | Lot Size (Acres) | 0.46 |
| Model | Residential | Total Rooms | 7 Rooms | Appraised Value | $ 166,800 |
| Style | Cape Cod | Heat Fuel | Gas | Assessed Value | $ 166,800 |
| Grade | Average Plus | Heat Type | Hot Air | ||
| Year Built | 2001 | AC Type | Central | ||
| Effective depreciation | 11 | Interior Floors | Hardwood | ||
| Stories | 1 3/4 Stories | Interior Walls | Plastered | ||
| Living Area sq/ft | 1,868 | Exterior Walls | Wood Shingle | ||
| Gross Area sq/ft | 3,724 | Roof Structure | Gable/Hip | ||
| Roof Cover | Asph/F Gls/Cmp | ||||
| Code | Description | Units/SQ ft | Appraised Value | Assessed Value |
| BGR2 | 2 Stall Bmt Gar | 1 | $ 2,900 | $ 2,900 |
| WDCK | Wood Decking w/railings | 180 | $ 3,300 | $ 3,300 |
| BMT | Basement-Unfinished | 1260 | $ 27,700 | $ 27,700 |
| GXT | Garage Extension | 88 | $ 5,100 | $ 5,100 |
| FPLG | Gas Fireplace-Direct Vent | 1 | $ 2,200 | $ 2,200 |