
| Appraised Value | Assessed Value | |
| Building Value | $ 326,400 | $ 326,400 |
| Extra Features | $ 28,700 | $ 28,700 |
| Outbuildings | $ 27,800 | $ 27,800 |
| Land Value | $ 164,000 | $ 164,000 |
| Totals | $ 546,900 | $ 546,900 |
| 2026
C.O.M.M. FD Tax (Commercial) $ 0 C.O.M.M. FD Tax (Residential) $ 628.94 Community Preservation Act Tax $ 111.57 Town Tax (Commercial) $ 0 Town Tax (Residential) $ 3,718.92 Total: $ 4,459.43 |
2025
C.O.M.M. FD Tax (Commercial) $ 0 C.O.M.M. FD Tax (Residential) $ 620.31 Community Preservation Act Tax $ 63.63 Town Tax (Commercial) $ 0 Town Tax (Residential) $ 2,120.92 Total: $ 2,804.86 |
| Residential Exemption Received= $233,792 |
| Owner: | Sale Date | Book/Page: | Sale Price: |
| 58 OAK STREET LLC | 2024-10-22 | 36639/97 | $500000 |
| BURLINGAME, RONALD R & CHRISTINE D | 1992-12-15 | 8338/0018 | $97500 |
| WOOD, GILBERT C | 1983-02-15 | 3681/0070 | $0 |
| As Built Cards:Click card # to view: | Card #1 | |

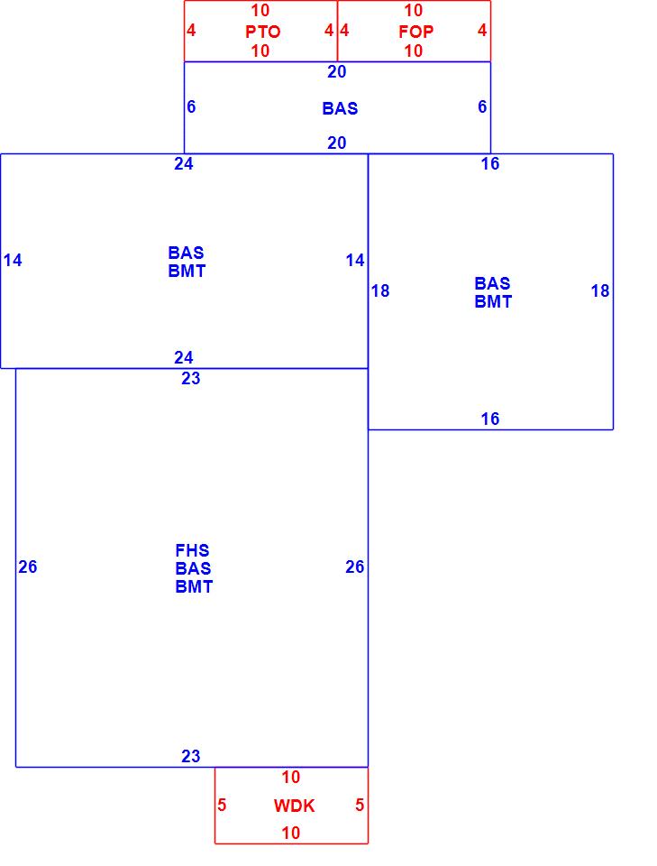
| B2N | Barn-any 2nd story area | FPC | Open Porch Concrete Floor | REF | Reference Only |
| BAS | First Floor, Living Area | FTS | Third Story Living Area (Finished) | SOL | Solarium |
| BMT | Basement Area (Unfinished) | FUS | Second Story Living Area (Finished) | SPE | Pool Enclosure |
| BRN | Barn | GAR | Garage | TQS | Three Quarters Story (Finished) |
| CAN | Canopy | GAZ | Gazebo | UAT | Attic Area (Unfinished) |
| CLP | Loading Platform | GRN | Greenhouse | UHS | Half Story (Unfinished) |
| FAT | Attic Area (Finished) | GXT | Garage Extension Front | UST | Utility Area (Unfinished) |
| FCP | Carport | KEN | Kennel | UTQ | Three Quarters Story (Unfinished) |
| FEP | Enclosed Porch | MZ1 | Mezzanine, Unfinished | UUA | Unfinished Utility Attic |
| FHS | Half Story (Finished) | PRG | Pergola | UUS | Full Upper 2nd Story (Unfinished) |
| FOP | Open or Screened in Porch | PRT | Portico | WDK | Wood Deck |
| PTO | Patio | ||||
Building |
Details |
Land |
|||
| Building value | $ 326,400 | Bedrooms | 3 Bedrooms | USE CODE | 1010 |
| Replacement Cost | $473,067 | Bathrooms | 2 Full-0 Half | Lot Size (Acres) | 0.38 |
| Model | Residential | Total Rooms | 6 Rooms | Appraised Value | $ 164,000 |
| Style | Conventional | Heat Fuel | Gas | Assessed Value | $ 164,000 |
| Grade | Average | Heat Type | Hot Air | ||
| Year Built | 1945 | AC Type | Central | ||
| Effective depreciation | 31 | Interior Floors | Carpet | ||
| Stories | 2 Stories | Interior Walls | Drywall | ||
| Living Area sq/ft | 1,641 | Exterior Walls | Wood Shingle | ||
| Gross Area sq/ft | 3,292 | Roof Structure | Gable/Hip | ||
| Roof Cover | Asph/F Gls/Cmp | ||||
| Code | Description | Units/SQ ft | Appraised Value | Assessed Value |
| FPL2 | Fireplace 1.5 stories | 1 | $ 4,100 | $ 4,100 |
| FGR2 | Garage- Avg-Wd Shingle | 672 | $ 24,200 | $ 24,200 |
| PAT1 | Patio- Average | 40 | $ 200 | $ 200 |
| WDCV | Deck comp w vinyl railings | 50 | $ 1,300 | $ 1,300 |
| FOP | Open Porch-roof-ceiling | 40 | $ 2,000 | $ 2,000 |
| BMT | Basement-Unfinished | 1222 | $ 20,900 | $ 20,900 |
| FPLG | Gas Fireplace-Direct Vent | 1 | $ 1,700 | $ 1,700 |
| GEN | Emergency Generator | 1 | $ 2,100 | $ 2,100 |