
| Appraised Value | Assessed Value | |
| Building Value | $ 344,400 | $ 344,400 |
| Extra Features | $ 64,500 | $ 64,500 |
| Outbuildings | $ 0 | $ 0 |
| Land Value | $ 186,900 | $ 186,900 |
| Totals | $ 595,800 | $ 595,800 |
| 2026
C.O.M.M. FD Tax (Commercial) $ 0 C.O.M.M. FD Tax (Residential) $ 685.17 Community Preservation Act Tax $ 121.54 Town Tax (Commercial) $ 0 Town Tax (Residential) $ 4,051.44 Total: $ 4,858.15 |
2025
C.O.M.M. FD Tax (Commercial) $ 0 C.O.M.M. FD Tax (Residential) $ 660.45 Community Preservation Act Tax $ 119.57 Town Tax (Commercial) $ 0 Town Tax (Residential) $ 3,985.64 Total: $ 4,765.66 |
| Owner: | Sale Date | Book/Page: | Sale Price: |
| SMALOVSCHI, TATIANA & AZIEV, SHUKHRAT | 2023-09-08 | C233891/0 | $625000 |
| BEATTY, BRENDAN J & REDDY, VERONICA L | 2016-12-01 | C211471/0 | $290000 |
| PASKO, MELANIE L | 2007-09-25 | C184190/0 | $295000 |
| JOYCE, MARIE | 1998-06-01 | C148769/0 | $110000 |
| KERR, DORCAS | 1992-11-30 | #D568909/0 | $1 |
| KERR, DORCAS ESTATE OF | 1991-06-01 | #D728283/0 | $0 |
| KERR, CHARLES J & DORCAS | 1972-01-11 | C53530/0 | $0 |
AsBuilt Card N/A

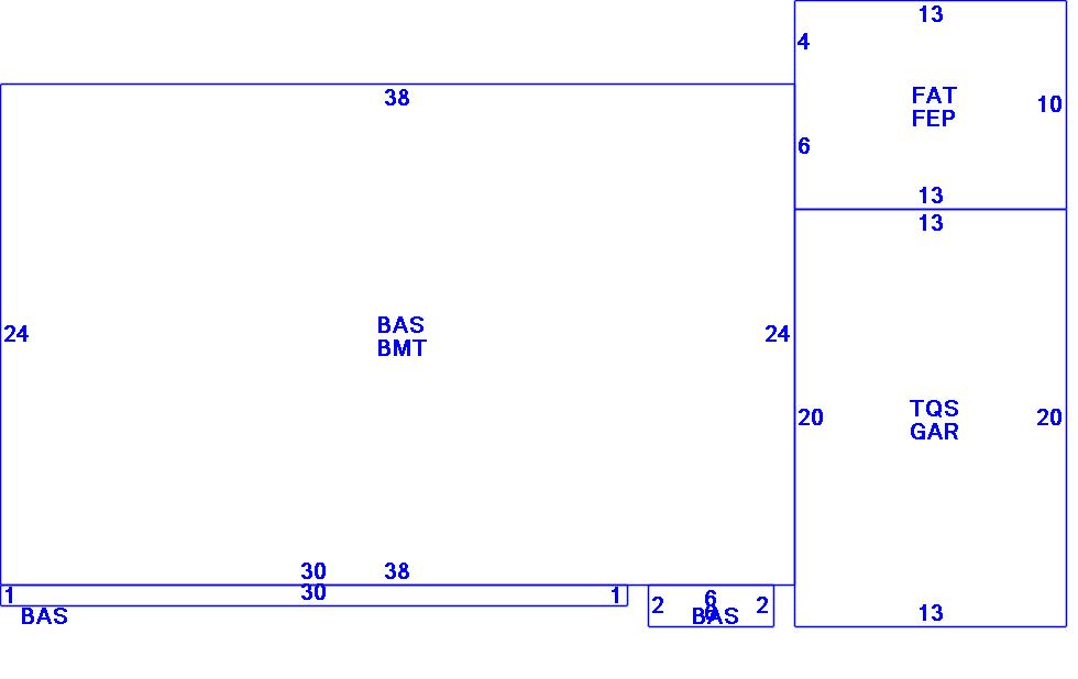
| B2N | Barn-any 2nd story area | FPC | Open Porch Concrete Floor | REF | Reference Only |
| BAS | First Floor, Living Area | FTS | Third Story Living Area (Finished) | SOL | Solarium |
| BMT | Basement Area (Unfinished) | FUS | Second Story Living Area (Finished) | SPE | Pool Enclosure |
| BRN | Barn | GAR | Garage | TQS | Three Quarters Story (Finished) |
| CAN | Canopy | GAZ | Gazebo | UAT | Attic Area (Unfinished) |
| CLP | Loading Platform | GRN | Greenhouse | UHS | Half Story (Unfinished) |
| FAT | Attic Area (Finished) | GXT | Garage Extension Front | UST | Utility Area (Unfinished) |
| FCP | Carport | KEN | Kennel | UTQ | Three Quarters Story (Unfinished) |
| FEP | Enclosed Porch | MZ1 | Mezzanine, Unfinished | UUA | Unfinished Utility Attic |
| FHS | Half Story (Finished) | PRG | Pergola | UUS | Full Upper 2nd Story (Unfinished) |
| FOP | Open or Screened in Porch | PRT | Portico | WDK | Wood Deck |
| PTO | Patio | ||||
Building |
Details |
Land |
|||
| Building value | $ 344,400 | Bedrooms | 2 Bedrooms | USE CODE | 1010 |
| Replacement Cost | $378,422 | Bathrooms | 2 Full-0 Half | Lot Size (Acres) | 0.34 |
| Model | Residential | Total Rooms | 5 Rooms | Appraised Value | $ 186,900 |
| Style | Ranch | Heat Fuel | Oil | Assessed Value | $ 186,900 |
| Grade | Average Plus | Heat Type | Hot Air | ||
| Year Built | 1965 | AC Type | None | ||
| Effective depreciation | 9 | Interior Floors | Hardwood | ||
| Stories | 1 Story | Interior Walls | Drywall | ||
| Living Area sq/ft | 1,143 | Exterior Walls | Wood Shingle | ||
| Gross Area sq/ft | 2,646 | Roof Structure | Gambrel | ||
| Roof Cover | Asph/F Gls/Cmp | ||||
| Code | Description | Units/SQ ft | Appraised Value | Assessed Value |
| FPL1 | Fireplace 1 story | 1 | $ 4,600 | $ 4,600 |
| BFA3 | Bsmt Fin-Exc-Partitioned | 300 | $ 17,300 | $ 17,300 |
| FEP | Enclosed porch-roof,ceiling | 130 | $ 8,900 | $ 8,900 |
| GAR | Attached Garage | 260 | $ 11,000 | $ 11,000 |
| BMT | Basement-Unfinished | 912 | $ 22,700 | $ 22,700 |