
| Appraised Value | Assessed Value | |
| Building Value | $ 666,200 | $ 666,200 |
| Extra Features | $ 0 | $ 0 |
| Outbuildings | $ 9,300 | $ 9,300 |
| Land Value | $ 282,500 | $ 282,500 |
| Totals | $ 958,000 | $ 958,000 |
| 2026
Town Tax (Commercial) $ 0 Town Tax (Residential) $ 0 W. Barnstable FD Tax (Commercial) $ 0 W. Barnstable FD Tax (Residential) $ 0 Total: $ 0 |
2025
Town Tax (Commercial) $ 0 Town Tax (Residential) $ 0 W. Barnstable FD Tax (Commercial) $ 0 W. Barnstable FD Tax (Residential) $ 0 Total: $ 0 |
| Owner: | Sale Date | Book/Page: | Sale Price: |
| BARNSTABLE, TOWN OF (LOMB) | 9-P214/0 | $0 |
| As Built Cards:Click card # to view: | Card #1 | |

| B2N | Barn-any 2nd story area | FPC | Open Porch Concrete Floor | REF | Reference Only |
| BAS | First Floor, Living Area | FTS | Third Story Living Area (Finished) | SOL | Solarium |
| BMT | Basement Area (Unfinished) | FUS | Second Story Living Area (Finished) | SPE | Pool Enclosure |
| BRN | Barn | GAR | Garage | TQS | Three Quarters Story (Finished) |
| CAN | Canopy | GAZ | Gazebo | UAT | Attic Area (Unfinished) |
| CLP | Loading Platform | GRN | Greenhouse | UHS | Half Story (Unfinished) |
| FAT | Attic Area (Finished) | GXT | Garage Extension Front | UST | Utility Area (Unfinished) |
| FCP | Carport | KEN | Kennel | UTQ | Three Quarters Story (Unfinished) |
| FEP | Enclosed Porch | MZ1 | Mezzanine, Unfinished | UUA | Unfinished Utility Attic |
| FHS | Half Story (Finished) | PRG | Pergola | UUS | Full Upper 2nd Story (Unfinished) |
| FOP | Open or Screened in Porch | PRT | Portico | WDK | Wood Deck |
| PTO | Patio | ||||
Building |
Details |
Land |
|||
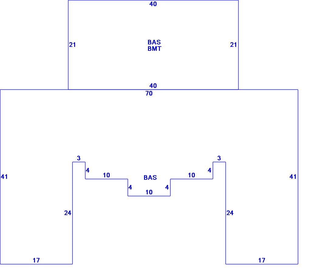
| Building value | $ 666,200 | Bedrooms | 00 | USE CODE | 931I |
| Replacement Cost | $912,631 | Bathrooms | 0 Full-0 Half | Lot Size (Acres) | 0.58 |
| Model | Ind/Comm | Total Rooms | Appraised Value | $ 282,500 | |
| Style | Library | Heat Fuel | Gas | Assessed Value | $ 282,500 |
| Grade | Average | Heat Type | Hot Air | ||
| Year Built | 1960 | AC Type | None | ||
| Effective depreciation | 27 | Interior Floors | Hardwood | ||
| Stories | 1 | Interior Walls | Drywall | ||
| Living Area sq/ft | 3,006 | Exterior Walls | Wood Shingle | ||
| Gross Area sq/ft | 3,846 | Roof Structure | Gable/Hip | ||
| Roof Cover | Asph/F Gls/Cmp | ||||
| Code | Description | Units/SQ ft | Appraised Value | Assessed Value |
| PAV1 | PAVING-ASPHALT | 5000 | $ 9,000 | $ 9,000 |
| SGN2 | DOUBLE SIDED | 10 | $ 200 | $ 200 |
| SGNP | SIGN POST 6" | 12 | $ 100 | $ 100 |