
| Appraised Value | Assessed Value | |
| Building Value | $ 326,400 | $ 326,400 |
| Extra Features | $ 31,500 | $ 31,500 |
| Outbuildings | $ 49,600 | $ 49,600 |
| Land Value | $ 305,900 | $ 305,900 |
| Totals | $ 713,400 | $ 713,400 |
| 2026
Community Preservation Act Tax $ 145.53 Town Tax (Commercial) $ 0 Town Tax (Residential) $ 4,851.12 W. Barnstable FD Tax (Commercial) $ 0 W. Barnstable FD Tax (Residential) $ 1,897.64 Total: $ 6,894.29 |
2025
Community Preservation Act Tax $ 140.91 Town Tax (Commercial) $ 0 Town Tax (Residential) $ 4,696.99 W. Barnstable FD Tax (Commercial) $ 0 W. Barnstable FD Tax (Residential) $ 1,624.32 Total: $ 6,462.22 |
| Owner: | Sale Date | Book/Page: | Sale Price: |
| FERGUSON, JANE GARDINER TR | 2026-03-02 | 37484/193 | $1 |
| RITZMAN, JANE F | 1997-08-08 | 10890/0343 | $0 |
| RITZMAN, PAUL J & JANE F | 1979-11-15 | 3014/0267 | $0 |
| As Built Cards:Click card # to view: | Card #1 | | Card #2 | | Card #3 | |

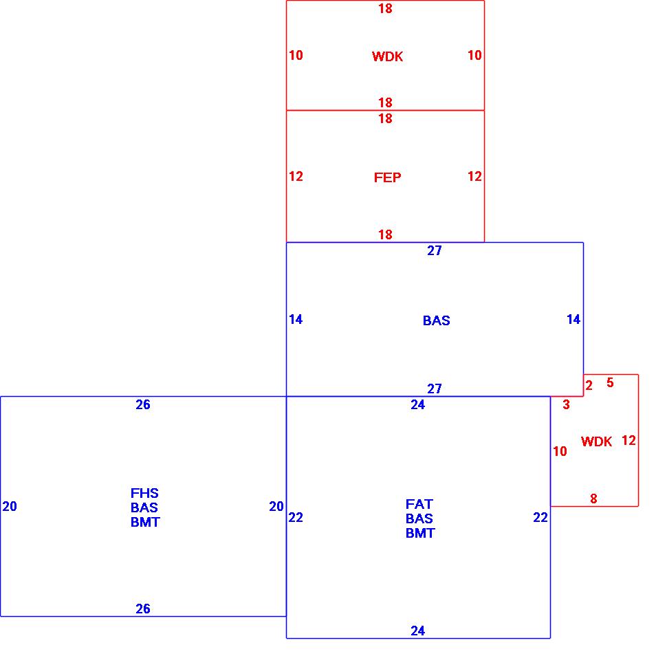
| B2N | Barn-any 2nd story area | FPC | Open Porch Concrete Floor | REF | Reference Only |
| BAS | First Floor, Living Area | FTS | Third Story Living Area (Finished) | SOL | Solarium |
| BMT | Basement Area (Unfinished) | FUS | Second Story Living Area (Finished) | SPE | Pool Enclosure |
| BRN | Barn | GAR | Garage | TQS | Three Quarters Story (Finished) |
| CAN | Canopy | GAZ | Gazebo | UAT | Attic Area (Unfinished) |
| CLP | Loading Platform | GRN | Greenhouse | UHS | Half Story (Unfinished) |
| FAT | Attic Area (Finished) | GXT | Garage Extension Front | UST | Utility Area (Unfinished) |
| FCP | Carport | KEN | Kennel | UTQ | Three Quarters Story (Unfinished) |
| FEP | Enclosed Porch | MZ1 | Mezzanine, Unfinished | UUA | Unfinished Utility Attic |
| FHS | Half Story (Finished) | PRG | Pergola | UUS | Full Upper 2nd Story (Unfinished) |
| FOP | Open or Screened in Porch | PRT | Portico | WDK | Wood Deck |
| PTO | Patio | ||||
Building |
Details |
Land |
|||
| Building value | $ 326,400 | Bedrooms | 4 Bedrooms | USE CODE | 1010 |
| Replacement Cost | $472,985 | Bathrooms | 2 Full-1 Half | Lot Size (Acres) | 2 |
| Model | Residential | Total Rooms | 6 Rooms | Appraised Value | $ 305,900 |
| Style | Conventional | Heat Fuel | Gas | Assessed Value | $ 305,900 |
| Grade | Average | Heat Type | Hot Water | ||
| Year Built | 1870 | AC Type | None | ||
| Effective depreciation | 31 | Interior Floors | HardwoodPine/Soft Wood | ||
| Stories | Interior Walls | Drywall | |||
| Living Area sq/ft | 1,765 | Exterior Walls | Wood Shingle | ||
| Gross Area sq/ft | 4,008 | Roof Structure | Gable/Hip | ||
| Roof Cover | Asph/F Gls/Cmp | ||||
| Code | Description | Units/SQ ft | Appraised Value | Assessed Value |
| FPL1 | Fireplace 1 story | 1 | $ 3,500 | $ 3,500 |
| FGR2 | Garage- Avg-Wd Shingle | 660 | $ 21,100 | $ 21,100 |
| SPL3 | Pool Gunite | 648 | $ 14,300 | $ 14,300 |
| WDCK | Wood Decking w/railings | 90 | $ 1,200 | $ 1,200 |
| BMT | Basement-Unfinished | 1048 | $ 18,900 | $ 18,900 |
| BRN3 | Barn w loft | 240 | $ 6,100 | $ 6,100 |
| SHD2 | Shed w/Elec | 210 | $ 2,100 | $ 2,100 |
| WDCK | Wood Decking w/railings | 180 | $ 4,100 | $ 4,100 |
| FEP | Enclosed porch-roof,ceiling | 216 | $ 9,100 | $ 9,100 |
| FNP1 | FENCE CHAIN LINK 4' | 140 | $ 600 | $ 600 |
| FNG1 | Gate 4'hx3'w | 1 | $ 100 | $ 100 |