
| Appraised Value | Assessed Value | |
| Building Value | $ 307,100 | $ 307,100 |
| Extra Features | $ 2,100 | $ 2,100 |
| Outbuildings | $ 2,100 | $ 2,100 |
| Land Value | $ 0 | $ 0 |
| Totals | $ 311,300 | $ 311,300 |
| 2026
C.O.M.M. FD Tax (Commercial) $ 0 C.O.M.M. FD Tax (Residential) $ 358 Community Preservation Act Tax $ 7.45 Town Tax (Commercial) $ 0 Town Tax (Residential) $ 248.29 Total: $ 613.74 |
2025
C.O.M.M. FD Tax (Commercial) $ 0 C.O.M.M. FD Tax (Residential) $ 347.42 Community Preservation Act Tax $ 14.22 Town Tax (Commercial) $ 0 Town Tax (Residential) $ 474.06 Total: $ 835.70 |
| Residential Exemption Received= $274,787 |
Residential Exemption Received= $233,792 |
| Owner: | Sale Date | Book/Page: | Sale Price: |
| COTTON, CYNTHIA LYNNE | 2021-05-28 | 34163/144 | $243211 |
| COTTON, JOHN JR | 2020-02-07 | 32677/0304 | $226500 |
| MCNAMARA, KERRY & FARR, RICHARD C TRS | 2020-02-07 | 32677/0300 | $0 |
| LYON, JAMES B TR | 2002-09-24 | 15635/0276 | $1 |
| LYON, JAMES B | 2002-09-16 | 15596/0223 | $219900 |
| WHITE, EDMUND J TR | 1983-11-15 | 3922/0302 | $107000 |
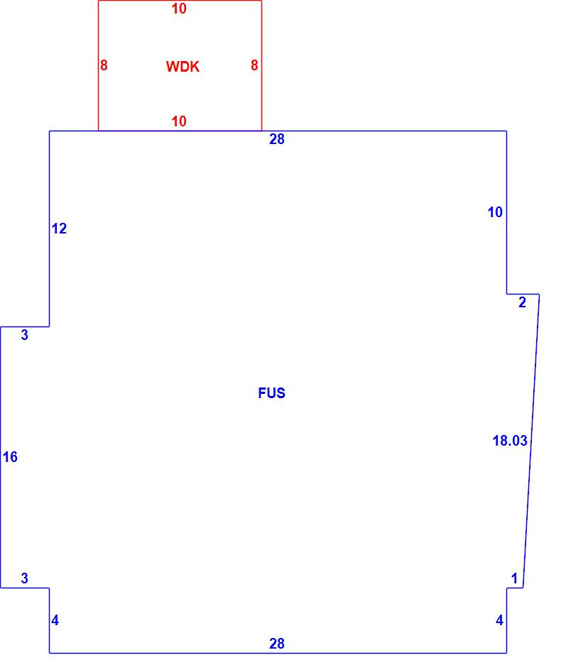
AsBuilt Card N/A

| B2N | Barn-any 2nd story area | FPC | Open Porch Concrete Floor | REF | Reference Only |
| BAS | First Floor, Living Area | FTS | Third Story Living Area (Finished) | SOL | Solarium |
| BMT | Basement Area (Unfinished) | FUS | Second Story Living Area (Finished) | SPE | Pool Enclosure |
| BRN | Barn | GAR | Garage | TQS | Three Quarters Story (Finished) |
| CAN | Canopy | GAZ | Gazebo | UAT | Attic Area (Unfinished) |
| CLP | Loading Platform | GRN | Greenhouse | UHS | Half Story (Unfinished) |
| FAT | Attic Area (Finished) | GXT | Garage Extension Front | UST | Utility Area (Unfinished) |
| FCP | Carport | KEN | Kennel | UTQ | Three Quarters Story (Unfinished) |
| FEP | Enclosed Porch | MZ1 | Mezzanine, Unfinished | UUA | Unfinished Utility Attic |
| FHS | Half Story (Finished) | PRG | Pergola | UUS | Full Upper 2nd Story (Unfinished) |
| FOP | Open or Screened in Porch | PRT | Portico | WDK | Wood Deck |
| PTO | Patio | ||||
Building |
Details |
Land |
|||
| Building value | $ 307,100 | Bedrooms | 1 Bedroom | USE CODE | 102U |
| Replacement Cost | $365,643 | Bathrooms | 1 Full-0 Half | Lot Size (Acres) | 0 |
| Model | Res Condo | Total Rooms | 4 Rooms | Appraised Value | $ 0 |
| Style | Condominium | Heat Fuel | Electric | Assessed Value | $ 0 |
| Grade | Custom | Heat Type | Hot Air | ||
| Year Built | 1983 | AC Type | Central | ||
| Effective depreciation | 16 | Interior Floors | Typical | ||
| Stories | 1 Story | Interior Walls | Drywall | ||
| Living Area sq/ft | 971 | Exterior Walls | Clapboard | ||
| Gross Area sq/ft | 1,051 | Roof Structure | Gable/Hip | ||
| Roof Cover | Asph/F Gls/Cmp | ||||
| Code | Description | Units/SQ ft | Appraised Value | Assessed Value |
| FPLG | Gas Fireplace-Direct Vent | 1 | $ 2,100 | $ 2,100 |
| WDCK | Wood Decking w/railings | 80 | $ 2,100 | $ 2,100 |