
| Appraised Value | Assessed Value | |
| Building Value | $ 315,500 | $ 315,500 |
| Extra Features | $ 33,000 | $ 33,000 |
| Outbuildings | $ 2,000 | $ 2,000 |
| Land Value | $ 156,900 | $ 156,900 |
| Totals | $ 507,400 | $ 507,400 |
| 2026
C.O.M.M. FD Tax (Commercial) $ 0 C.O.M.M. FD Tax (Residential) $ 583.51 Community Preservation Act Tax $ 103.51 Town Tax (Commercial) $ 0 Town Tax (Residential) $ 3,450.32 Total: $ 4,137.34 |
2025
C.O.M.M. FD Tax (Commercial) $ 0 C.O.M.M. FD Tax (Residential) $ 567.18 Community Preservation Act Tax $ 102.68 Town Tax (Commercial) $ 0 Town Tax (Residential) $ 3,422.81 Total: $ 4,092.67 |
| Owner: | Sale Date | Book/Page: | Sale Price: |
| DUPUIS, MARCEL | 2018-06-05 | 31316/0187 | $100 |
| RUCKER, ELAINE C | 1994-11-15 | 9443/0088 | $1 |
| RUCKER, GEORGE C & ELAINE C | 1980-09-30 | 3163/0156 | $0 |
| As Built Cards:Click card # to view: | Card #1 | |

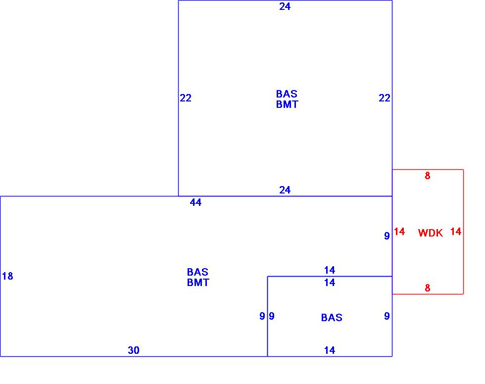
| B2N | Barn-any 2nd story area | FPC | Open Porch Concrete Floor | REF | Reference Only |
| BAS | First Floor, Living Area | FTS | Third Story Living Area (Finished) | SOL | Solarium |
| BMT | Basement Area (Unfinished) | FUS | Second Story Living Area (Finished) | SPE | Pool Enclosure |
| BRN | Barn | GAR | Garage | TQS | Three Quarters Story (Finished) |
| CAN | Canopy | GAZ | Gazebo | UAT | Attic Area (Unfinished) |
| CLP | Loading Platform | GRN | Greenhouse | UHS | Half Story (Unfinished) |
| FAT | Attic Area (Finished) | GXT | Garage Extension Front | UST | Utility Area (Unfinished) |
| FCP | Carport | KEN | Kennel | UTQ | Three Quarters Story (Unfinished) |
| FEP | Enclosed Porch | MZ1 | Mezzanine, Unfinished | UUA | Unfinished Utility Attic |
| FHS | Half Story (Finished) | PRG | Pergola | UUS | Full Upper 2nd Story (Unfinished) |
| FOP | Open or Screened in Porch | PRT | Portico | WDK | Wood Deck |
| PTO | Patio | ||||
Building |
Details |
Land |
|||
| Building value | $ 315,500 | Bedrooms | 3 Bedrooms | USE CODE | 1010 |
| Replacement Cost | $409,754 | Bathrooms | 2 Full-0 Half | Lot Size (Acres) | 0.23 |
| Model | Residential | Total Rooms | 5 Rooms | Appraised Value | $ 156,900 |
| Style | Ranch | Heat Fuel | Gas | Assessed Value | $ 156,900 |
| Grade | Average | Heat Type | Hot Air | ||
| Year Built | 1972 | AC Type | Central | ||
| Effective depreciation | 23 | Interior Floors | CarpetHardwood | ||
| Stories | 1 Story | Interior Walls | Drywall | ||
| Living Area sq/ft | 1,320 | Exterior Walls | Vinyl Siding | ||
| Gross Area sq/ft | 2,626 | Roof Structure | Gable/Hip | ||
| Roof Cover | Asph/F Gls/Cmp | ||||
| Code | Description | Units/SQ ft | Appraised Value | Assessed Value |
| BFA | Bsmt Fin-Avg | 750 | $ 10,000 | $ 10,000 |
| WDCK | Wood Decking w/railings | 112 | $ 2,000 | $ 2,000 |
| BMT | Basement-Unfinished | 1194 | $ 23,000 | $ 23,000 |