
| Appraised Value | Assessed Value | |
| Building Value | $ 363,000 | $ 363,000 |
| Extra Features | $ 24,100 | $ 24,100 |
| Outbuildings | $ 6,500 | $ 6,500 |
| Land Value | $ 154,500 | $ 154,500 |
| Totals | $ 548,100 | $ 548,100 |
| 2026
C.O.M.M. FD Tax (Commercial) $ 0 C.O.M.M. FD Tax (Residential) $ 630.32 Community Preservation Act Tax $ 111.81 Town Tax (Commercial) $ 0 Town Tax (Residential) $ 3,727.08 Total: $ 4,469.21 |
2025
C.O.M.M. FD Tax (Commercial) $ 0 C.O.M.M. FD Tax (Residential) $ 610.19 Community Preservation Act Tax $ 110.47 Town Tax (Commercial) $ 0 Town Tax (Residential) $ 3,682.36 Total: $ 4,403.02 |
| Owner: | Sale Date | Book/Page: | Sale Price: |
| FROLOV, ALEXANDER & OUTKINA, NATALIA | 2022-06-27 | 35212/080 | $550000 |
| WESTON, WILLIAM C | 2021-09-13 | 34527/332 | $0 |
| WESTON, WILLIAM C & CAROL A | 2012-07-30 | 26543/0271 | $183000 |
| GEGGATT, ROBERT F III | 2006-04-28 | 20950/0288 | $312500 |
| BEVILACQUA, ROBERT J | 2004-09-24 | 19064/0114 | $110000 |
| MCCARTHY, ROBERT E TR | 1997-09-29 | 10978/0111 | $1 |
| MCCARTHY, ROBERT E & PATRICIA | 1965-01-13 | 1286/0421 | $0 |
| As Built Cards:Click card # to view: | Card #1 | |

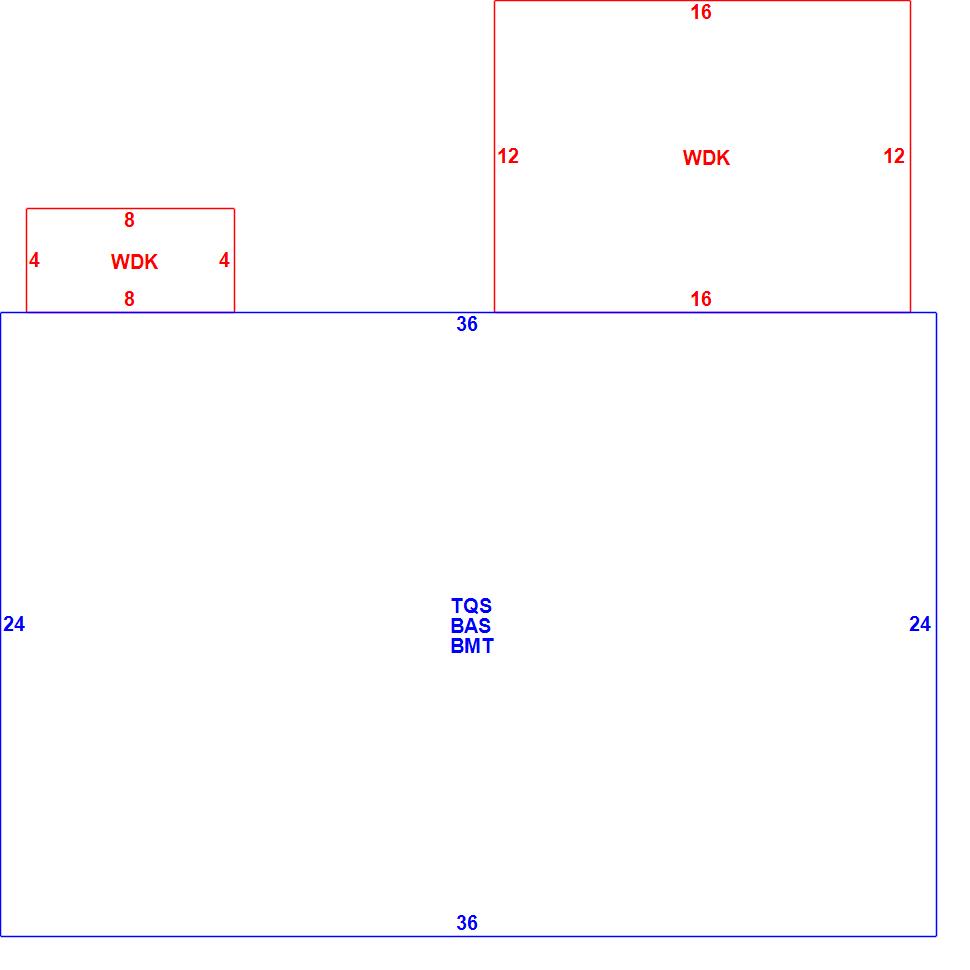
| B2N | Barn-any 2nd story area | FPC | Open Porch Concrete Floor | REF | Reference Only |
| BAS | First Floor, Living Area | FTS | Third Story Living Area (Finished) | SOL | Solarium |
| BMT | Basement Area (Unfinished) | FUS | Second Story Living Area (Finished) | SPE | Pool Enclosure |
| BRN | Barn | GAR | Garage | TQS | Three Quarters Story (Finished) |
| CAN | Canopy | GAZ | Gazebo | UAT | Attic Area (Unfinished) |
| CLP | Loading Platform | GRN | Greenhouse | UHS | Half Story (Unfinished) |
| FAT | Attic Area (Finished) | GXT | Garage Extension Front | UST | Utility Area (Unfinished) |
| FCP | Carport | KEN | Kennel | UTQ | Three Quarters Story (Unfinished) |
| FEP | Enclosed Porch | MZ1 | Mezzanine, Unfinished | UUA | Unfinished Utility Attic |
| FHS | Half Story (Finished) | PRG | Pergola | UUS | Full Upper 2nd Story (Unfinished) |
| FOP | Open or Screened in Porch | PRT | Portico | WDK | Wood Deck |
| PTO | Patio | ||||
Building |
Details |
Land |
|||
| Building value | $ 363,000 | Bedrooms | 1 Bedroom | USE CODE | 1010 |
| Replacement Cost | $398,952 | Bathrooms | 2 Full-0 Half | Lot Size (Acres) | 0.21 |
| Model | Residential | Total Rooms | 6 | Appraised Value | $ 154,500 |
| Style | Cape Cod | Heat Fuel | Gas | Assessed Value | $ 154,500 |
| Grade | Average | Heat Type | Hot Water | ||
| Year Built | 2005 | AC Type | None | ||
| Effective depreciation | 9 | Interior Floors | HardwoodCarpet | ||
| Stories | 1 3/4 Stories | Interior Walls | Drywall | ||
| Living Area sq/ft | 1,426 | Exterior Walls | Wood Shingle | ||
| Gross Area sq/ft | 2,816 | Roof Structure | Gable/Hip | ||
| Roof Cover | Asph/F Gls/Cmp | ||||
| Code | Description | Units/SQ ft | Appraised Value | Assessed Value |
| BMT | Basement-Unfinished | 864 | $ 21,800 | $ 21,800 |
| WDCK | Wood Decking w/railings | 192 | $ 3,600 | $ 3,600 |
| FPLG | Gas Fireplace-Direct Vent | 1 | $ 2,300 | $ 2,300 |
| WDCK | Wood Decking w/railings | 32 | $ 1,500 | $ 1,500 |
| SHED | Shed | 80 | $ 1,400 | $ 1,400 |