
| Appraised Value | Assessed Value | |
| Building Value | $ 228,900 | $ 228,900 |
| Extra Features | $ 38,300 | $ 38,300 |
| Outbuildings | $ 3,400 | $ 3,400 |
| Land Value | $ 159,400 | $ 159,400 |
| Totals | $ 430,000 | $ 430,000 |
| 2026
C.O.M.M. FD Tax (Commercial) $ 0 C.O.M.M. FD Tax (Residential) $ 494.50 Community Preservation Act Tax $ 87.72 Town Tax (Commercial) $ 0 Town Tax (Residential) $ 2,924 Total: $ 3,506.22 |
2025
C.O.M.M. FD Tax (Commercial) $ 0 C.O.M.M. FD Tax (Residential) $ 473.57 Community Preservation Act Tax $ 85.74 Town Tax (Commercial) $ 0 Town Tax (Residential) $ 2,857.89 Total: $ 3,417.20 |
| Owner: | Sale Date | Book/Page: | Sale Price: |
| OCONNELL, JAMES R & KEMP, MOLLY K | 2018-09-18 | 31535/0058 | $305000 |
| GONSALVES, PAUL M & SHAUNA L | 2014-12-31 | 28608/0222 | $235000 |
| MCGEAN, WILLIAM A & SUSAN GAGNON | 2010-02-26 | 24391/0006 | $184000 |
| WASHINGTON, PATRICIA A | 2007-06-21 | 22127/0246 | $290000 |
| HOXIE, STEPHEN E JR & CHERYL A | 2000-02-25 | 12849/0258 | $1 |
| WASHINGTON, CHERYL A & PAT | 1998-07-27 | 11594/0190 | $1 |
| WASHINGTON, CHERYL A | 1997-11-14 | 11061/0068 | $5000 |
| MOTTE, JODY L & CHERYL A | 1995-08-15 | 9801/0136 | $65000 |
| NUNNARI, LEO & MARY | 1968-09-09 | 1412/0252 | $1 |
| As Built Cards:Click card # to view: | Card #1 | | Card #2 | | Card #3 | |

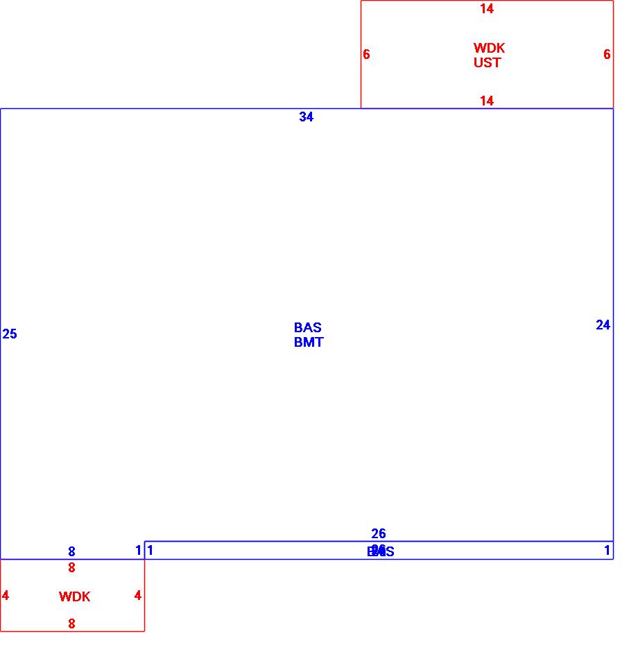
| B2N | Barn-any 2nd story area | FPC | Open Porch Concrete Floor | REF | Reference Only |
| BAS | First Floor, Living Area | FTS | Third Story Living Area (Finished) | SOL | Solarium |
| BMT | Basement Area (Unfinished) | FUS | Second Story Living Area (Finished) | SPE | Pool Enclosure |
| BRN | Barn | GAR | Garage | TQS | Three Quarters Story (Finished) |
| CAN | Canopy | GAZ | Gazebo | UAT | Attic Area (Unfinished) |
| CLP | Loading Platform | GRN | Greenhouse | UHS | Half Story (Unfinished) |
| FAT | Attic Area (Finished) | GXT | Garage Extension Front | UST | Utility Area (Unfinished) |
| FCP | Carport | KEN | Kennel | UTQ | Three Quarters Story (Unfinished) |
| FEP | Enclosed Porch | MZ1 | Mezzanine, Unfinished | UUA | Unfinished Utility Attic |
| FHS | Half Story (Finished) | PRG | Pergola | UUS | Full Upper 2nd Story (Unfinished) |
| FOP | Open or Screened in Porch | PRT | Portico | WDK | Wood Deck |
| PTO | Patio | ||||
Building |
Details |
Land |
|||
| Building value | $ 228,900 | Bedrooms | 3 Bedrooms | USE CODE | 1010 |
| Replacement Cost | $301,130 | Bathrooms | 2 Full-0 Half | Lot Size (Acres) | 0.25 |
| Model | Residential | Total Rooms | 5 Rooms | Appraised Value | $ 159,400 |
| Style | Raised Ranch | Heat Fuel | Gas | Assessed Value | $ 159,400 |
| Grade | Average | Heat Type | Hot Air | ||
| Year Built | 1968 | AC Type | Central | ||
| Effective depreciation | 24 | Interior Floors | CarpetHardwood | ||
| Stories | 1 Story | Interior Walls | Drywall | ||
| Living Area sq/ft | 850 | Exterior Walls | Wood Shingle | ||
| Gross Area sq/ft | 1,874 | Roof Structure | Gable/Hip | ||
| Roof Cover | Asph/F Gls/Cmp | ||||
| Code | Description | Units/SQ ft | Appraised Value | Assessed Value |
| BFA1 | Bsmt Fin-Good-Partitioned | 800 | $ 19,800 | $ 19,800 |
| SHED | Shed | 192 | $ 1,500 | $ 1,500 |
| WDCK | Wood Decking w/railings | 116 | $ 1,900 | $ 1,900 |
| UST | Utility Storage-attached | 84 | $ 900 | $ 900 |
| BMT | Basement-Unfinished | 824 | $ 17,600 | $ 17,600 |